Ingatlan Televízió
Ingatlan Televízió
további hirdetések
adatlap bezárása

Leányfalu 
 

Hivatkozási szám: 5899857
Ingatlan adatai
Irányár: 128 000 000 Ft
Típus: ház
Kategória: eladó
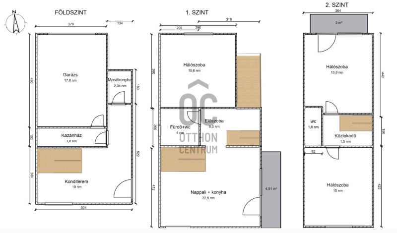
Alapterület: 127 m2
Fűtés: gáz (cirko)
Állapota: -
Szobák száma: 4
Építés éve: 1986
Szintek száma: -
Részletes leírás
Amennyiben a képek, az ingatlan adatai felkeltették érdeklődését, akkor várom szeretettel egy megtekintésre.

Még néhány fontos információ előtte:
- A fűtést gázcirkó biztosítja, amit 2016-ban helyeztek el. Hatékony és gazdaságos megoldást kínál a hidegebb hónapokban is.
- A ház téglaépítésű és 10 cm szigetelést kapott melynek köszönhetően az otthon melege és hangulata minden évszakban megmarad.
- A belső felújítás 2020-ban kezdődött és a mai napig szépítik és fejlesztik a házat jelenlegi tulajdonosai

Mit is jelent ez:
- villany, fűtés, víz, csatorna, azaz minden fel lett újítva
- az áram esetében: van éjszakai áram, 3*16 Amper, elektromos autó töltési lehetőség teljeskörűen kialakítva
- az összes burkolat új színt és hangulatot adott a háznak.
- kialakításra került az elektromos kapu
- az okosotthon rendszer ami kiterjed mindenre. Fűtés, redőnyök, kapu, kamera, fűnyíró, stb.
- a megújult gyönyörű kert öntözőrendszert kapott

Adottságok, lokáció:
- A ház közel 500 nm-es kertje remek helyszínt biztosít a kertészkedésre vagy akár egy kellemes nyári esti baráti összejövetel helyszinéül.
- Fontos, hogy a fák, a kerítés pedig megadja azt az intimitást amit elvárunk egy háztól.
- A garászba 1 autó a fedett beállóra 2 autó is kényelmesen elfér
- A ház melletti kb 40 nm-es melléképület akár külön is használható tárolásra vagy egy különálló lakrészre.
- És ha lesétálunk a patakpartjához a saját kertünkből akkor egy 4 nm-es borospincét is tudunk használni.

Rengeteget tudnék még mondani róla, de javaslom jöjjön és nézze meg velem együtt!
További adatok
Telekterület: 568 m2
Kert mérete: 568 m2
Erkély mérete: 8 m2
Felszereltség: -
Parkolás: -
Kilátás: -
Egyéb extrák:  
Hirdető adatai
Hirdető neve: Otthon Centrum
Kapcsolattartó: Baji Andrea
Hirdető telefonszáma: +36 70 388 6306
Honlap: -
 
Üzenetet küldhet a hirdetőnek, árajánlatot tehet az ingatlanra:
Az Ön neve:
Az Ön e-mail címe:
Üzenet: