Ingatlan Televízió
Ingatlan Televízió
további hirdetések
adatlap bezárása

Vecsés 
 

Hivatkozási szám: 5899638
Ingatlan adatai
Irányár: 145 000 000 Ft
Típus: ház
Kategória: eladó
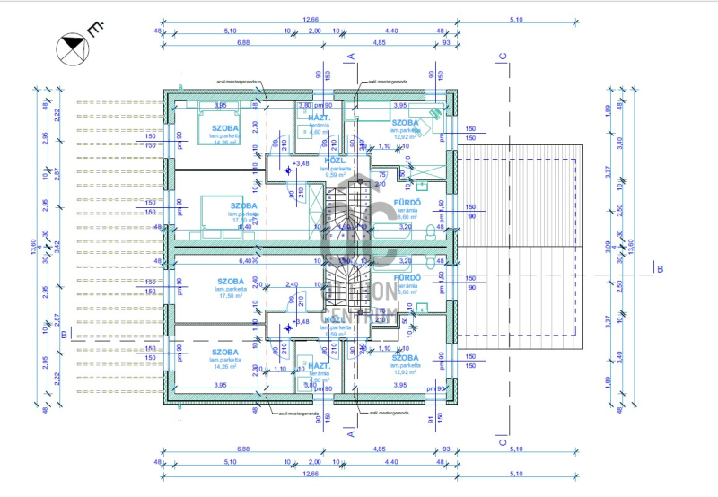
Alapterület: 147 m2
Fűtés: -
Állapota: új
Szobák száma: 4
Építés éve: 2025
Szintek száma: -
Részletes leírás
Eladó egy korszerű, magas műszaki tartalommal kivitelezett családi ház, mely minden részletében a kényelmet és az energiatakarékosságot szolgálja.

✅ Nyílászárók: 5 légkamrás, 3 rétegű üvegezésű műanyag ablakok, hőszigetelt garázskapu, modern bejárati ajtó.
✅ Burkolatok: hideg- és melegburkolatok ízlés szerint választhatók, minőségi kerámia csempék és gres burkolatok.
✅ Fűtés-hűtés: levegő-víz hőszivattyús rendszer padlófűtéssel, külön vezérelhető szintekkel, split klímák a nappaliban és a déli fekvésű szobákban.
✅ Belső terek: gipszkarton mennyezet, fehér diszperziós festés, dekorfóliás beltéri ajtók.
✅ Fürdők, szaniterek: minőségi csaptelepek, mosdók, WC-k és üvegfalas zuhanyzó.
✅ Extra felszereltség: elektromos kapu, kaputelefon, riasztó-előkészítés, redőny-előkészítés elektromos vezetékezéssel.
✅ Kert és külső: térkőburkot bejárók, terasz, kavicsos szikkasztó, egyszerű kerítés és kerti csap kiépítve.

Az ingatlan világos, modern homlokzattal (törtfehér-világos barna kombináció), energiatakarékos megoldásokkal és átgondolt belső elrendezéssel várja új tulajdonosát.
További adatok
Telekterület: 424 m2
Kert mérete: 424 m2
Erkély mérete: 22 m2
Felszereltség: -
Parkolás: -
Kilátás: -
Egyéb extrák:  
Hirdető adatai
Hirdető neve: Otthon Centrum
Kapcsolattartó: Sümegi Mária
Hirdető telefonszáma: +36 70 461 9061
Honlap: -
 
Üzenetet küldhet a hirdetőnek, árajánlatot tehet az ingatlanra:
Az Ön neve:
Az Ön e-mail címe:
Üzenet: