Ingatlan Televízió
Ingatlan Televízió
további hirdetések
adatlap bezárása

Vácrátót 
 

Hivatkozási szám: 5899208
Ingatlan adatai
Irányár: 96 500 000 Ft
Típus: ház
Kategória: eladó
Alapterület: 76 m2
Fűtés: -
Állapota: új
Szobák száma: 4
Építés éve: 2025
Szintek száma: -
Részletes leírás
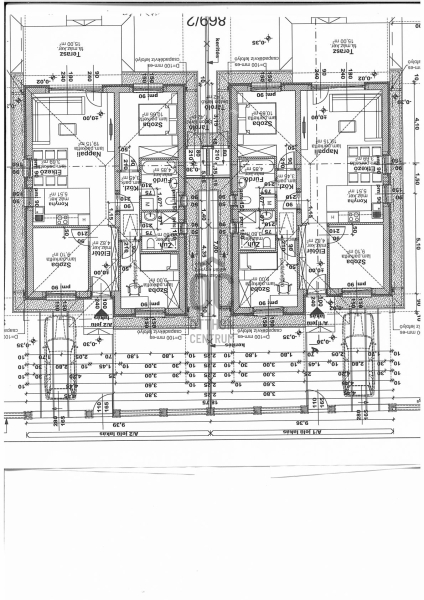
A Szent-István lakóparkban tárolóval kapcsolódó új építésű ikerház költözhető 2026 tavaszán.

A ház elrendezése

- amerikai konyhás nappali 28 nm-terasz 15nm
- hálószobák 9nm- 9.10 nm- 10.65
- 2 fürdöszba káddal, illetve zuhanyzóval
- közlekedők
- külső tároló
-gépkocsi beálló- térkővel burkolt
- telek mérete 380 nm

Referencákkal rendelkező igényes kivitelezőtől.

Műszaki tartalom:

- hőszivattyús padlófűtés
- 30 cm-es téglafalazat-10 cm-es grafitos kivitelezés
- beton födém-pakolható padlástér
- klíma kiállások minden helyiségben
-H tarifás villanyóra
- napelem előkészítés
- redőny előkészítés
- riasztó előkészítés
- 3 rétegű meleg peremes nyílászárók

A lakópark csendes, nyugod életteret nyújt. A gyerekek elhelyezését Vácrátóton bölcsöde, óvoda, általános iskola biztosítja.
A település szomszédságában található Őrbottyán és Veresegyház szolgáltatásai minden igényt kielégítenek.
Budapest busszal könnyen elérhető.
Egy évben többször is felkereshetjük a Nemzeti Botanikus Kertet.
További adatok
Telekterület: 380 m2
Kert mérete: 380 m2
Erkély mérete: -
Felszereltség: -
Parkolás: -
Kilátás: -
Egyéb extrák:  
Hirdető adatai
Hirdető neve: Otthon Centrum
Kapcsolattartó: Bohus László
Hirdető telefonszáma: +36 70 412 4106
Honlap: -
 
Üzenetet küldhet a hirdetőnek, árajánlatot tehet az ingatlanra:
Az Ön neve:
Az Ön e-mail címe:
Üzenet: