Ingatlan Televízió
Ingatlan Televízió
további hirdetések
adatlap bezárása

Ercsi 
 

Hivatkozási szám: 5896229
Ingatlan adatai
Irányár: 49 000 000 Ft
Típus: ház
Kategória: eladó
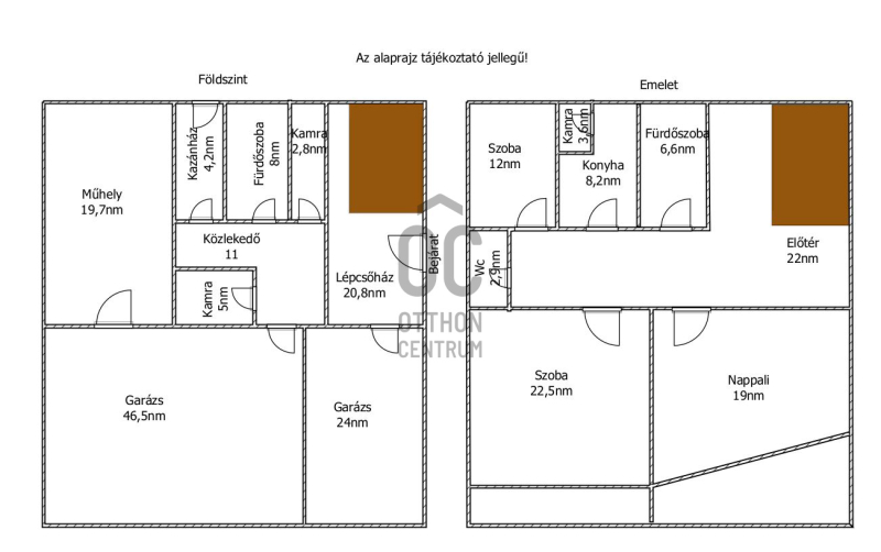
Alapterület: 144 m2
Fűtés: -
Állapota: felújítást igényel
Szobák száma: 3
Építés éve: 1980
Szintek száma: -
Részletes leírás
ERCSI CSENDES, FREKVENTÁLT UTCÁJÁBAN - 3 SZOBÁS CSALÁDI HÁZ FELÚJÍTANDÓ ÁLLAPOTBAN - NAGY LEHETŐSÉGEKKEL

- JÓ ÁR-ÉRTÉK ARÁNY
- masszív alapok
- a házhoz tartozik tároló + szaletli
- 144 n nm alapterület,bruttó 200nm
- RENGETEG KISZOLGÁLÓ HELYISÉGGEL, 3 GARÁZS BEÁLLÁS + MŰHELY
- 3 szoba, nyugodt KÖRNYEZET, JÓ LEVEGŐ
- STABIL alapok,KORSZERŰSÍTHETŐ
- jelenleg teljes felújítás szükséges
- riasztó bekötve
- kedves szomszédok
- motivált tulajdonos
- telek 600 nm
- ELSŐSORBAN KÉSZPÉNZES VEVŐKET VÁRUNK
- Víz, villany, éjstzakai áram vissza van vezetve

Nyugodt csendes környék, összetartó közösség
M6-os AUTÓPÁLYA kijárata kb. 3 perc autóútra
Óvoda, iskola, bevásárlási lehetőség adott.

REMEK LEHETŐSÉGET NYÚJT CSALÁDOKNAK, AHOL IGAZI, HANGULATOS, BARÁTSÁGOS, NYUGODT KÖRNYÉKEN KERESIK OTTHONUKAT!
Itt a lehetőség, SAJÁT ÁLMOK MEGVALÓSÍTÁSÁRA
Hívjon minél hamarabb, még mielőtt elkapkodják Ön elől!
Ha ez az ingatlan megfelel jövőbeni elképzeléseinek, nézzük meg együtt!
Érdemes!
Akár hétvégén is!

Hitel ügyintézéssel, ügyvédi tanácsadással szívesen állunk rendelkezésükre!

A hét bármely hétköznapján elérhető vagyok!
AMENNYIBEN FONTOS ÖNNEK A JÓ KÖZLEKEDÉS ÉS INFRASTRUKTÚRA, AKKOR HÍVJON BIZALOMMAL, TEKINTSÜK MEG AZ INGATLANT ÉS TEGYEN EGY JÓ AJÁNLATOT!!!
További adatok
Telekterület: 600 m2
Kert mérete: 600 m2
Erkély mérete: -
Felszereltség: -
Parkolás: -
Kilátás: -
Egyéb extrák:  
Hirdető adatai
Hirdető neve: Otthon Centrum
Kapcsolattartó: Lelkes Ágnes
Hirdető telefonszáma: +36 70 412 3716
Honlap: -
 
Üzenetet küldhet a hirdetőnek, árajánlatot tehet az ingatlanra:
Az Ön neve:
Az Ön e-mail címe:
Üzenet: