Ingatlan Televízió
Ingatlan Televízió
további hirdetések
adatlap bezárása

Hajdúsámson 
 

Hivatkozási szám: 5892383
Ingatlan adatai
Irányár: 67 700 000 Ft
Típus: ház
Kategória: eladó
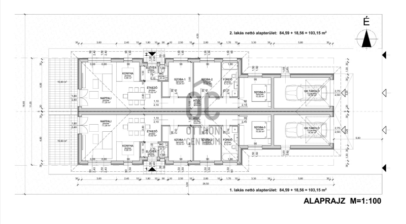
Alapterület: 103 m2
Fűtés: -
Állapota: új
Szobák száma: 4
Építés éve: 2026
Szintek száma: -
Részletes leírás
Álomotthon Hajdúsámsonban – ne maradjon le róla!
Új építésű, modern ikerház eladó, amely minden igényt kielégít: tágas, világos, energiatakarékos és családbarát. Legyen Ön az első lakója!

Lakótér és elrendezés:
- 84,59 m² nettó hasznos lakóterület + 18,56 m²-es garázs
- amerikai konyhás, hatalmas nappali, ahol a család és barátok együtt lehetnek
- 3 különnyíló, kényelmes hálószoba
- fürdőszoba + külön WC
- tágas terasz (igény szerint fedett kialakítással)
- igény esetén plusz fürdő, mosókonyha vagy kamra

Műszaki tartalom:
- ikerházfelek közt saját főfal + profi hang- és hőszigetelés
- külön utcafronti bejárat minden lakóegységhez
- masszív beton alap és ácsolt tetőszerkezet betoncseréppel
- 30-as N+F tégla falazat, 15 cm homlokzati hőszigeteléssel
- 25 cm födémszigetelés és 10 cm aljzatszigetelés
- 3 rétegű üvegezésű, hőhídmentes nyílászárók
- padlófűtés hőszivattyúval a teljes lakásban – alacsony rezsi, magas komfort
- választható belső nyílászárók, burkolatok, szaniterek és csaptelepek – alakítsa saját ízlésére!
- szabadon variálható belső elrendezés

Telek és környezet:
- saját, 406 m²-es telek
- új építésű ingatlanok környezetében, barátságos lakóövezet
- a főút mindössze 550 m-re – csend és nyugalom, de könnyű közlekedés
- bevásárlás és szolgáltatások 7 percnyire (LIDL, Rossmann, Tedi, KIK, EcoFamily, konditerem stb.)
- kisbolt pár perces sétára a mindennapi kényelmet szolgálva

Miért érdemes most lépni?
Ez a ház ideális választás pároknak, családoknak és mindazoknak, akik modern, energiatakarékos és kényelmes otthonra vágynak Hajdúsámsonban. Az ár-érték arány kivételes, a környék fejlődő és barátságos.

Ne hagyja ki, mert hamar elkel!
Érdeklődjön még ma, hogy Ön választhassa ki elsőként álmai otthonát!
További adatok
Telekterület: 406 m2
Kert mérete: 406 m2
Erkély mérete: -
Felszereltség: -
Parkolás: -
Kilátás: -
Egyéb extrák:  
Hirdető adatai
Hirdető neve: Otthon Centrum
Kapcsolattartó: Apró Ferenc
Hirdető telefonszáma: +36 70 469 3916
Honlap: -
 
Üzenetet küldhet a hirdetőnek, árajánlatot tehet az ingatlanra:
Az Ön neve:
Az Ön e-mail címe:
Üzenet: