Ingatlan Televízió
Ingatlan Televízió
további hirdetések
adatlap bezárása

Hajdúsámson 
 

Hivatkozási szám: 5892379
Ingatlan adatai
Irányár: 93 000 000 Ft
Típus: ház
Kategória: eladó
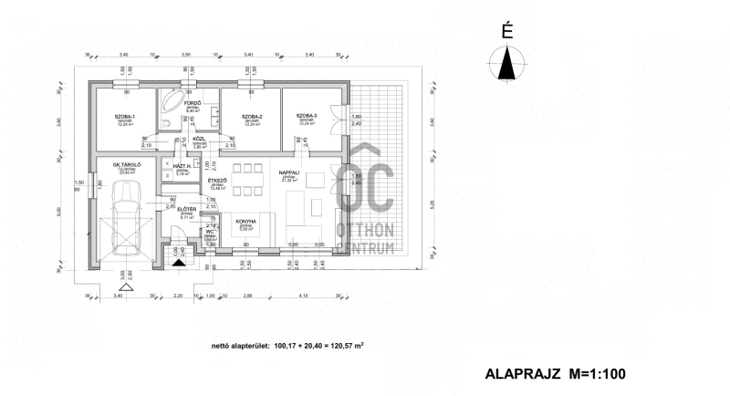
Alapterület: 121 m2
Fűtés: -
Állapota: új
Szobák száma: 4
Építés éve: 2026
Szintek száma: -
Részletes leírás
Exkluzív, új építésű családi ház eladó Hajdúsámsonban – 100 m² lakótér + 20,4 m² garázs, saját telekkel!

Ez az önálló családi ház a modern életstílust testesíti meg: tágas amerikai konyhás nappali, három külön hálószoba, két fürdőszoba, két WC és egy praktikus mosókonyha biztosítja a család kényelmét. A közvetlenül kapcsolódó, bő 20 m²-es garázs nemcsak biztonságot nyújt az autónak, hanem extra tárolóhelyet is jelent.

A ház minden részletében a minőséget képviseli: masszív szerkezet, vastag szigetelés, hőhídmentes nyílászárók, valamint modern hőszivattyús padlófűtés gondoskodik az alacsony fenntartási költségekről és a maximális komfortérzetről. A belső burkolatok, szaniterek és nyílászárók az Ön választása szerint kerülnek beépítésre – így valóban személyre szabott otthont kap.

A 817 m²-es saját telek nyugodt, új építésű környezetben helyezkedik el. A főút pár percnyire van, így gyorsan elérhető a város, de a forgalom zajától teljesen védett. Bevásárlási lehetőségek, szolgáltatások és sportolási lehetőségek karnyújtásnyira találhatók, így a mindennapi élet kényelmes és praktikus lesz.

Ez az ingatlan tökéletes választás azoknak, akik értékelik a modern technológiát, a nyugodt környezetet és a saját ház nyújtotta függetlenséget.
Ne maradjon le róla – ez a lehetőség gyorsan gazdára talál!
További adatok
Telekterület: 817 m2
Kert mérete: 817 m2
Erkély mérete: -
Felszereltség: -
Parkolás: -
Kilátás: -
Egyéb extrák:  
Hirdető adatai
Hirdető neve: Otthon Centrum
Kapcsolattartó: Apró Ferenc
Hirdető telefonszáma: +36 70 469 3916
Honlap: -
 
Üzenetet küldhet a hirdetőnek, árajánlatot tehet az ingatlanra:
Az Ön neve:
Az Ön e-mail címe:
Üzenet: