Ingatlan Televízió
Ingatlan Televízió
további hirdetések
adatlap bezárása

Balmazújváros 
 

Hivatkozási szám: 5892360
Ingatlan adatai
Irányár: 49 200 000 Ft
Típus: lakás (újépítésű)
Kategória: eladó
Alapterület: 55 m2
Fűtés: gáz (cirko)
Állapota: új
Szobák száma: 2
Építés éve: 2027
Szintek száma: -
Részletes leírás
Legyen Ön a tulajdonosa egy új építésű, szép lakásnak!
7 lakásos társasház egy 650 m2-es telekre épül Balmazújváros Belvárosában.

34 m2 - 57 m2-es lakások leköthetőek 20%-os önerővel, november 30-ig még ezen az áron elérhető!

A társasház főfalai 30 N+F falazó blokkal készülnek, külső felületen 15 cm vastagságú AUSTROTHERM AT-N100 hőszigeteléssel, vakolt felülettel.
A külső nyílászárók műanyagok 3 rétegű üvegezésű ablakokkal, redőnyökkel.
Az épület fűtése gázkazánnal történik, a melegvíz ellátása gázüzemű kazánnal történik.
A lakásokban padlófűtéses hőleadás lesz, mért hőmennyiség mérővel történik az egyéni elszámolás.
A vételár tartalmazza az 5%-os ÁFÁ-t!

Igény szerint további beállók vásárolhatók, melyek vételára 4 millió Ft, vagy garázs mely 7 milliós árat képvisel.

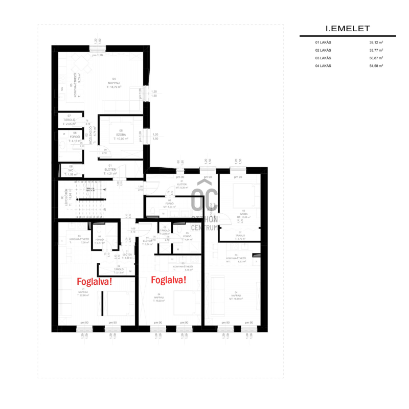
A hirdetésben szereplő 1. emeleti, lakás 55 m2-es.
Belső elosztása: előtér, külön wc, konyha, nappali, 1 hálószoba, fürdőszoba, kamra

Kulcsrakész ára : 49.200.000 Ft
A megbízható kivitelező, számos referenciával.
Minden korosztály számára ideális választás!

Tervezett műszaki átadás: 2026 év vége (hatósági átadás 2027. március)

Az ingatlanra CSOK+ 2 gyermekre és babaváró igénybevehető!
A lakás az Otthona Start hitel által is finanszírozható min: 20%-os önerővel!

További részletekért keressen bizalommal! Amennyiben a vásárláshoz hitelre van szüksége irodánkban teljes körű szolgáltatással várjuk!
További adatok
Telekterület: -
Kert mérete: -
Erkély mérete: -
Felszereltség: -
Parkolás: -
Kilátás: udvari
Egyéb extrák:  
Hirdető adatai
Hirdető neve: Otthon Centrum
Kapcsolattartó: Rákosné Tímea
Hirdető telefonszáma: +36 70 412 5026
Honlap: -
 
Üzenetet küldhet a hirdetőnek, árajánlatot tehet az ingatlanra:
Az Ön neve:
Az Ön e-mail címe:
Üzenet: