Ingatlan Televízió
Ingatlan Televízió
további hirdetések
adatlap bezárása

Nyíregyháza 
 

Hivatkozási szám: 5892328
Ingatlan adatai
Irányár: 89 900 000 Ft
Típus: ház
Kategória: eladó
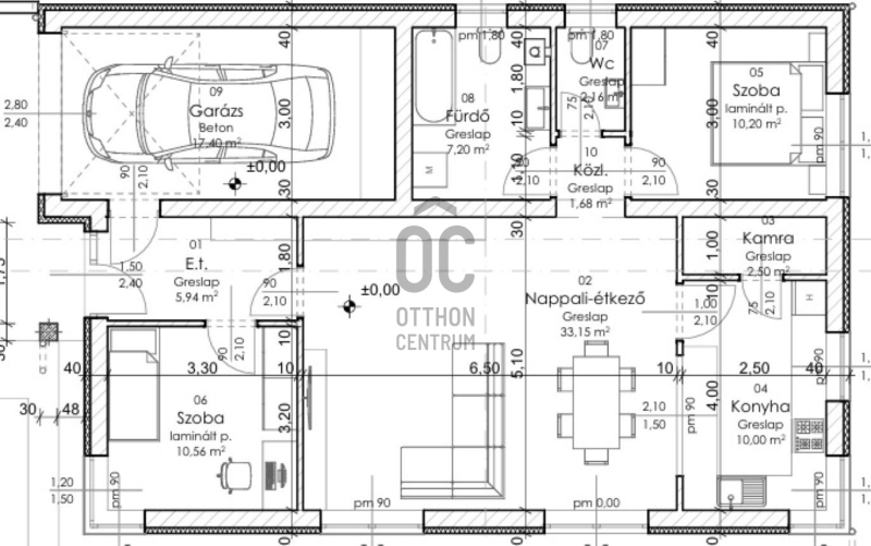
Alapterület: 101 m2
Fűtés: gáz (cirko)
Állapota: új
Szobák száma: 3
Építés éve: 2026
Szintek száma: -
Részletes leírás
Képzeld el, hogy minden nap csend és nyugalom fogad, amikor hazaérsz. Egy letisztult, modern ikerház vár rád Nyírszőlős egyik legígéretesebb utcájában, ahol a nyugalom és a városi kényelem tökéletes harmóniában él együtt. Ez a nettó 101 m²-es, minden részletében átgondolt és jövőbiztos otthon nemcsak kényelmes, hanem energiatakarékos is.

Átgondolt elrendezés, minőségi kivitelezés
A ház tágas nappali-étkezője tökéletes helyszín családi vacsorákhoz, ünneplésekhez vagy egy nyugodt esti pihenéshez. A Porotherm 30-as csiszolt téglafalazat, korszerű ragasztóhab, 15 cm EPS szigetelés és háromrétegű nyílászárók gondoskodnak a hosszú távú értékről. A fűtési rendszert hagyományos gázkazánnal vagy a modernebb hőszivattyúval is megoldhatod. Az ingatlan nappali + 2 külön bejáratú hálószobával rendelkezik, így minden családtagnak saját tér jut, a világos, modern konyha pedig az otthon szíve, amit igény szerint alakíthatsz.

Mindennapi kényelem és napfényes terek
A garázs közvetlen kapcsolata a lakótérhez esős vagy hideg napokon felbecsülhetetlen kényelmet biztosít. A gondosan választott burkolatok időtállóak és stílusosak, a nagy ablakokon keresztül pedig bőséges természetes fény árasztja el a tereket. A kert sokoldalúan hasznosítható – legyen szó pihenésről, gyermekek játékáról, vagy akár egy jövőbeli medence és kerti sütögető kialakításáról.

Értékálló befektetés, élhető környezet
Ez egy teljesen új utca – ez a jövő lakóövezete, ahol a zöld környezet és a város közelsége egyszerre élvezhető, miközben az ingatlan értéke évről évre emelkedik. Ne érd be egy sablonos lakással! Itt a lehetőség, hogy olyan otthonban élj, amely tükrözi az igényeidet, és amelyet mások is megcsodálnak. Lépj most, és foglald le ezt a különleges lehetőséget Nyírszőlős szívében!
További adatok
Telekterület: 900 m2
Kert mérete: 900 m2
Erkély mérete: -
Felszereltség: -
Parkolás: -
Kilátás: -
Egyéb extrák:  
Hirdető adatai
Hirdető neve: Otthon Centrum
Kapcsolattartó: Poráczki Ádám
Hirdető telefonszáma: +36 70 716 9411
Honlap: -
 
Üzenetet küldhet a hirdetőnek, árajánlatot tehet az ingatlanra:
Az Ön neve:
Az Ön e-mail címe:
Üzenet: