Ingatlan Televízió
Ingatlan Televízió
további hirdetések
adatlap bezárása

Érd 
 

Hivatkozási szám: 5891279
Ingatlan adatai
Irányár: 115 000 000 Ft
Típus: ház
Kategória: eladó
Alapterület: 128 m2
Fűtés: -
Állapota: új
Szobák száma: 4
Építés éve: 2025
Szintek száma: -
Részletes leírás
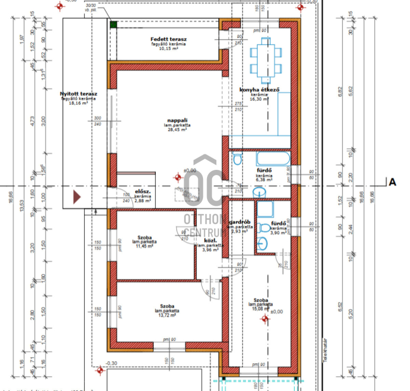
Érd Parkvárosi részén új építésű házak környezetében nettó 128 m2-es, 1 szintes, praktikusan átgondolt alaprajzzal, nagy teraszokkal, 872 m2-es telken épülő családi ház eladó! Tágas nappali-étkező-konyha, szeparáltan elhelyezett 3 hálószoba, 2 fürdőszoba kerül kialakítása, biztosítva a kényelmes életet egy nagyobb család számára is.
Garázs és gépkocsibeálló is épül a gépjárműveknek.

Az épület 30-as téglából épül, 15 cm-es szigeteléssel.
A fűtés és a meleg víz ellátás korszerű hőszivattyús rendszerrel történik. A hűtés klímával megoldott.
Kérésre a műszaki leírás rendelkezésre áll.


Várható birtokba adás: 2026.05.31.

Amennyiben felkeltette az érdeklődését ez a kiváló ár-érték arányú ingatlan, további információkért kérem hívjon bizalommal!
További adatok
Telekterület: 872 m2
Kert mérete: 872 m2
Erkély mérete: 29 m2
Felszereltség: -
Parkolás: -
Kilátás: -
Egyéb extrák:  
Hirdető adatai
Hirdető neve: Otthon Centrum
Kapcsolattartó: Lukácsi Mária
Hirdető telefonszáma: +36 70 461 9686
Honlap: -
 
Üzenetet küldhet a hirdetőnek, árajánlatot tehet az ingatlanra:
Az Ön neve:
Az Ön e-mail címe:
Üzenet: