Ingatlan Televízió
Ingatlan Televízió
további hirdetések
adatlap bezárása

Hajdúsámson 
 

Hivatkozási szám: 5890859
Ingatlan adatai
Irányár: 72 000 000 Ft
Típus: ház
Kategória: eladó
Alapterület: 90 m2
Fűtés: gáz (cirko)
Állapota: új
Szobák száma: 4
Építés éve: 2026
Szintek száma: -
Részletes leírás
Prémium minőség – energia hatékony kivitelezés – 2026. decemberi átadással!

Sámsonkert csendes, családbarát részén, kínálunk eladásra, tégla építésű, modern ikerházat, mely a legkorszerűbb építési szabványok szerint készül, magas minőségű anyagokból.

Főbb adatok:

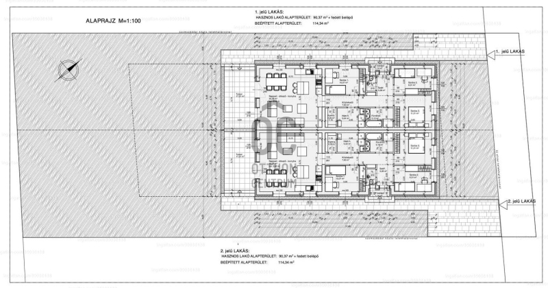
- Hasznos alapterület: 90 m² / ikerház
- Terasz: 18 m² fedett
- Telekrész: 475 m²
- Szobák száma: 3 + amerikai konyhás nappali

Átadás: 2026. december

CSOK igényelhető, 5% ÁFA az árban!

Kialakítás és elrendezés:

A 35 m²-es amerikai konyhás nappali világos, tágas közösségi térként szolgál, közvetlen kijárattal a 18 m²-es fedett teraszra.
Három kényelmes hálószoba (10 m², 9,5 m², 11,5 m²) gondoskodik a család minden tagjának privát teréről.

Fűtés és komfort:

- Gázkazános fűtésrendszer
- Padlófűtés a közösségi terekben
- Radiátoros fűtés a hálószobákban
- Korszerű, hőszigetelt nyílászárók
- Energia hatékony, alacsony rezsijű otthon

Külső és környezet:

Mindkét házhoz saját telekrész tartozik, így a privát kert és nyugalom garantált.
A környék csendes, biztonságos és családbarát, kiváló választás fiatal pároknak vagy családoknak.

Ez az ikerház ideális választás, ha egy korszerű, kényelmes és értékálló otthont keresőknek modern környezetben.

További információért hívjon, akár hétvégén is.
További adatok
Telekterület: 460 m2
Kert mérete: 460 m2
Erkély mérete: 18 m2
Felszereltség: -
Parkolás: -
Kilátás: -
Egyéb extrák:  
Hirdető adatai
Hirdető neve: Otthon Centrum
Kapcsolattartó: Tréki-Simonyi Anett
Hirdető telefonszáma: +36 70 716 9641
Honlap: -
 
Üzenetet küldhet a hirdetőnek, árajánlatot tehet az ingatlanra:
Az Ön neve:
Az Ön e-mail címe:
Üzenet: