Ingatlan Televízió
Ingatlan Televízió
további hirdetések
adatlap bezárása

Debrecen 
 

Hivatkozási szám: 5890781
Ingatlan adatai
Irányár: 185 000 000 Ft
Típus: ház
Kategória: eladó
Alapterület: 200 m2
Fűtés: -
Állapota: új
Szobák száma: 5
Építés éve: 2025
Szintek száma: -
Részletes leírás
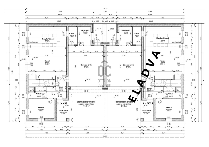
Új építésű prémium kategóriás, nappali + 4 szobás ikerház eladó Pallagon!!

Debrecen-Pallag közkedvelt lakóparkjában új építésű, modern megjelenésű ikerház 2. lakóegysége Eladó!

Az építkezés folyamatban van!!

Az ikerházak paraméterei:
- 200 nm-s alapterület 500 nm-es telekrésszel, modern minimáldizájn megjelenéssel, Nappali+4 szobás, 3 fürdőszobás elrendezéssel
- külső falazata: 30 cm -es Phorotherm tégla+ 15 cm vastag grafitos külső szigetelés
- 3 rétegű 7 kamrás hőszigetelt, kívül színes műanyag nyílászárók, szekcionált elektromos garázskapu
- fűtése levegő-levegő hőszivattyús rendszerrel valósul meg, minden helyiségben padlófűtés és inverteres klímás hűtés \\\"H\\\" tarifás 3x20A elektromos hálózatról
- Prémium kategóriás burkolatok, szaniterek
- Élhető tágas terek, alaposan átgondolt tervezés a tulajdonos kényelme érdekében
- Nagy méretű 60 nm-es, ideális tájolású Nappali-étkező-konyha egy légtérben
- A felső szinten 3 tetőterasz közel 30 nm-en

Az építkezés a szerződéskötéstől számítva közel 1 évet vesz igénybe!!

Amennyiben felkeltette érdeklődését az ingatlan teljes dokumentációval illetve ingyenes CSOK+ kedvezményes hitelügyintézéssel várjuk irodánkban!
További adatok
Telekterület: 1 074 m2
Kert mérete: 1 074 m2
Erkély mérete: 34 m2
Felszereltség: -
Parkolás: -
Kilátás: -
Egyéb extrák:  
Hirdető adatai
Hirdető neve: Otthon Centrum
Kapcsolattartó: Szilágyi Tamás
Hirdető telefonszáma: +36 70 388 5771
Honlap: -
 
Üzenetet küldhet a hirdetőnek, árajánlatot tehet az ingatlanra:
Az Ön neve:
Az Ön e-mail címe:
Üzenet: