Ingatlan Televízió
Ingatlan Televízió
további hirdetések
adatlap bezárása

Diósd 
 

Hivatkozási szám: 5889739
Ingatlan adatai
Irányár: 86 000 000 Ft
Típus: ház
Kategória: eladó
Alapterület: 105 m2
Fűtés: -
Állapota: új
Szobák száma: 5
Építés éve: 2026
Szintek száma: -
Részletes leírás
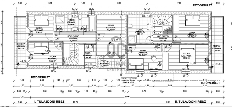
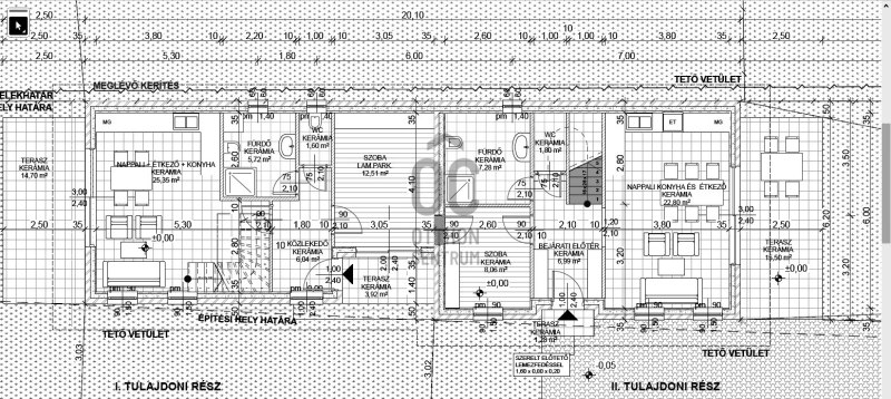
Diósd szívében, a csendes és zöldövezeti városrészben kínáljuk eladásra az új építésű ikerfelet.

Az ingatlan 106 nm hasznos területű, és a tágas, 4 szoba + amerikai konyhás nappalis elrendezésével minden igényt kielégít.
A házhoz tartozik két fürdőszoba, egy vendég WC is.
A 350 négyzetméteres saját kert lehetőséget biztosít a szabadban való pihenésre és a családi összejövetelek lebonyolítására.
A hőszivattyús fűtés és Thermo-block falazat biztosítja a könnyű fenntarthatóságot.

Kulcsrakész állapot szerződéskötést követő 6 hónapon belül!
Magas műszaki tartalom, ajándék konyha 1 millió Ft-ig!

Készpénzes vásárlás esetén az ár: 78 Mft
További adatok
Telekterület: 350 m2
Kert mérete: 350 m2
Erkély mérete: 26 m2
Felszereltség: -
Parkolás: -
Kilátás: -
Egyéb extrák:  
Hirdető adatai
Hirdető neve: Otthon Centrum
Kapcsolattartó: Varga Zoltán
Hirdető telefonszáma: +36 70 461 9881
Honlap: -
 
Üzenetet küldhet a hirdetőnek, árajánlatot tehet az ingatlanra:
Az Ön neve:
Az Ön e-mail címe:
Üzenet: