Ingatlan Televízió
Ingatlan Televízió
további hirdetések
adatlap bezárása

Márkó 
 

Hivatkozási szám: 5888935
Ingatlan adatai
Irányár: 134 000 000 Ft
Típus: ház
Kategória: eladó
Alapterület: 92 m2
Fűtés: gáz (cirko)
Állapota: -
Szobák száma: 4
Építés éve: 2015
Szintek száma: -
Részletes leírás
Az ingatlanról videót is készítettünk, tekintse meg weboldalunkon, a H511254 regisztrációs számra keresve!

A Média Építészeti Díjat nyert Ubrankovics technológiával készült falazat könnyűszerkezetes, készház osztrák minőség, mely számos előnnyel rendelkezik:
-kiemelkedő hő- és hangszigetelés, így rendkívül kedvező rezsiköltséggel működtethető,
-a külső és belső falakban nagy térfogatsűrűségű (50–60 kg/m³) farostszigetelés található,
-rétegrend: 5,5 mm Baumit vakolat + 60 mm vakolható farostszigetelés + 160 mm KVH fa tartóváz + 160 mm cellulóz szigetelés + 15 mm építőlemez + 40 mm belső lécváz + 12,5 mm gipszkarton,
-valamint kiváló tűzvédelemmel is rendelkezik.

Az ingatlan főbb jellemzői:
-3 rétegű műanyag ablakok, redőnnyel és szúnyoghálóval felszerelve,
-fűtés gázkazánról működik – a közlekedőben, fürdőszobában, WC-ben padlófűtés, a többi helyiségben radiátoros hőleadás,
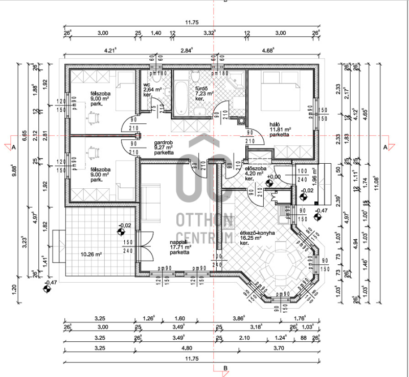
-helyiségek: 3 hálószoba, nappali, tágas konyha–étkező, WC-kézmosó, fürdőszoba,
-a nappaliból közvetlen kijárat nyílik a teraszra,
-az udvaron dupla beállásos garázs és egy tágas tároló is megtalálható,
-nagy, sík telek – medence, játszótér vagy kerti pihenő könnyedén kialakítható,
-kiváló elosztású, praktikus és élhető otthon, ideális választás családosok számára.

A fa természetesn, megújuló alapanyag, amely megköti és tárolja a CO2-t, csökkentve az építés ökológiai lábnyomát, kiegyensúlyozott, egészséges beltéri klímát teremt, csendesebb, nyugodtabb életteret biztosít, gyorsan, pontosan, hulladékmentesen építhető. Egy ilyen épületben könnyebb a levegő, jobb a közérzet és a fa természetes harmóniája határozza meg a mindennapokat.

Elhelyezkedés:
Márkó mindössze 5 perc autóútra van Veszprémtől. A településen megtalálható óvoda, étterem, kisboltok, posta, gyógyszertár és orvosi rendelő – minden adott a kényelmes mindennapokhoz.

Bővebb információkért és megtekintésért, keressen bizalommal!
BANKFÜGGETLEN hitelben és teljes körű ügyintézésben segítünk!
További adatok
Telekterület: 1 200 m2
Kert mérete: 1 200 m2
Erkély mérete: 10 m2
Felszereltség: -
Parkolás: -
Kilátás: -
Egyéb extrák:  
Hirdető adatai
Hirdető neve: Otthon Centrum
Kapcsolattartó: Gacza-Nagy Regina
Hirdető telefonszáma: +36 70 388 5976
Honlap: -
 
Üzenetet küldhet a hirdetőnek, árajánlatot tehet az ingatlanra:
Az Ön neve:
Az Ön e-mail címe:
Üzenet: