Ingatlan Televízió
Ingatlan Televízió
további hirdetések
adatlap bezárása

Dunavarsány 
 

Hivatkozási szám: 5888817
Ingatlan adatai
Irányár: 125 000 000 Ft
Típus: ház
Kategória: eladó
Alapterület: 115 m2
Fűtés: -
Állapota: új
Szobák száma: 5
Építés éve: 2026
Szintek száma: -
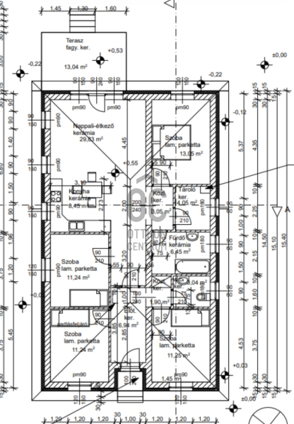
Részletes leírás
DUNAVARSÁNYBAN ÚJÉPÍTÉSŰ CSALÁDI HÁZ

HÁZ:
- 115 nm nappali + 4 szoba
- 2026-ben épül
- minőségi anyagokból
- Porotherm tégla + 15 cm dryvit szigetelés
- cserép tetőfedés, műanyag nyílászárók
- hőszivattyú fűtés rendszer (levegő-levegő) + padlófűtés, meleg vízhez puffertartály
- riasztó, klíma előkészítés
- 3X16 A áramellátás
- földszintes, remek elosztású , napfényes


TELEK:
- 2770 nm saját telek
- autó beállási lehetőség
- elektromos kapu előkészítés
- viacoloros járdák és beálló
- körbe kerítve

Elhelyezkedés:
- Budapesttől 35 percre
- Iskola, óvoda, bevásárlási lehetőség pár perc sétára

HITEL ÉS CSOK igényelhető! Minden hivatalos ügyintézésben segítünk!

10 %-TÓL MÁR MOST FOGLALHATÓ!
ÁTADÁS: 2026-06
További adatok
Telekterület: 2 770 m2
Kert mérete: 2 770 m2
Erkély mérete: 13 m2
Felszereltség: -
Parkolás: -
Kilátás: -
Egyéb extrák:  
Hirdető adatai
Hirdető neve: Otthon Centrum
Kapcsolattartó: Andreopulos Niki
Hirdető telefonszáma: +36 70 716 8706
Honlap: -
 
Üzenetet küldhet a hirdetőnek, árajánlatot tehet az ingatlanra:
Az Ön neve:
Az Ön e-mail címe:
Üzenet: