Ingatlan Televízió
Ingatlan Televízió
további hirdetések
adatlap bezárása

Dömsöd 
 

Hivatkozási szám: 5888786
Ingatlan adatai
Irányár: 47 900 000 Ft
Típus: ház
Kategória: eladó
Alapterület: 64 m2
Fűtés: -
Állapota: új
Szobák száma: 3
Építés éve: 2025
Szintek száma: -
Részletes leírás
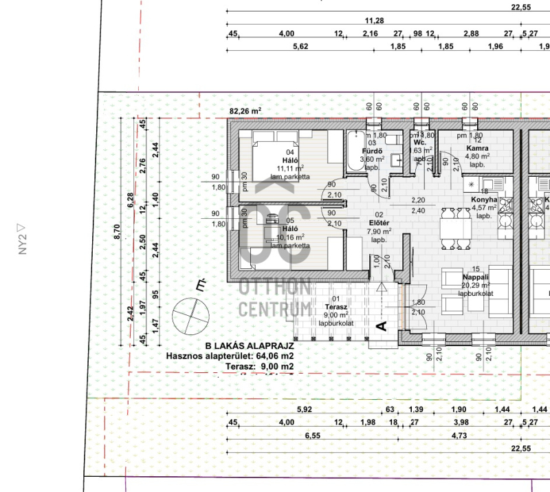
Dömsödön eladó

• újépítésű
• ikerház első fele
• nettó 64 m2, bruttó 82.26 m2
• amerikai konyhás nappali + 2 hálószoba
• fűtés: hőszivattyú + padlófűtés
• 10 cm grafitos szigetelés
• választható burkolatok: hidegburkolatok: 4.500 Ft/nm-ig. (30x30 sztender méretig),
meleg burkolatok: 3.500 Ft/nm-ig
• telek: 276 m2
• terasz: 9 m2

Átadás: 2026 nyár
További adatok
Telekterület: 276 m2
Kert mérete: 276 m2
Erkély mérete: 9 m2
Felszereltség: -
Parkolás: -
Kilátás: -
Egyéb extrák:  
Hirdető adatai
Hirdető neve: Otthon Centrum
Kapcsolattartó: Joó Krisztina
Hirdető telefonszáma: +36 70 469 3111
Honlap: -
 
Üzenetet küldhet a hirdetőnek, árajánlatot tehet az ingatlanra:
Az Ön neve:
Az Ön e-mail címe:
Üzenet: