Ingatlan Televízió
Ingatlan Televízió
további hirdetések
adatlap bezárása

Szigetszentmiklós 
 

Hivatkozási szám: 5888781
Ingatlan adatai
Irányár: 129 900 000 Ft
Típus: ház
Kategória: eladó
Alapterület: 133 m2
Fűtés: -
Állapota: új
Szobák száma: 5
Építés éve: 2026
Szintek száma: -
Részletes leírás
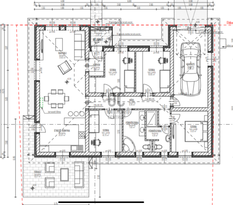
Szigetszentmiklóson garázsos családi ház

- központi elhelyezkedésű
- téglaépítésű (főfalak: 30-as tégla, válaszfalak: 10-es tégla)
- Nettó 130,44 m2-es
- garázsos
- nappali + 4 hálószoba
- két fürdőszoba (egy kádas és egy zuhanyzós)
- fűtés: hőszivattyús padlófűtés az egész házban
- választható burkolatok
- járdák, autóbehajtók, ház körüli járdák térkővel lerakva
- riasztó rendszer kiépítve: nyitás + mozgásérzékelők
- nappaliban 3,5 kw-os klíma
- elektromos kapu és garázsajtó
- 3 rétegű műanyag ablakok
- redőny
- szúnyogháló
- nagy ablakokra elektromos redőny
- terasz burkolás benne van az árban
- 15 cm-es külső szigetelés
- fa födémszerkezet, 30-as tetőszigetelés
- 12,5 mm-es gipszkarton álmennyezet
- betoncserép tetőfedés
- színezett ereszcsatorna
- Nem Bucka!!
További adatok
Telekterület: 700 m2
Kert mérete: 700 m2
Erkély mérete: 24 m2
Felszereltség: -
Parkolás: -
Kilátás: -
Egyéb extrák:  
Hirdető adatai
Hirdető neve: Otthon Centrum
Kapcsolattartó: Andreopulos Niki
Hirdető telefonszáma: +36 70 716 8706
Honlap: -
 
Üzenetet küldhet a hirdetőnek, árajánlatot tehet az ingatlanra:
Az Ön neve:
Az Ön e-mail címe:
Üzenet: