Ingatlan Televízió
Ingatlan Televízió
további hirdetések
adatlap bezárása

Ráckeve 
 

Hivatkozási szám: 5888768
Ingatlan adatai
Irányár: 75 900 000 Ft
Típus: ház
Kategória: eladó
Alapterület: 102 m2
Fűtés: gáz (cirko)
Állapota: új
Szobák száma: 4
Építés éve: 2025
Szintek száma: -
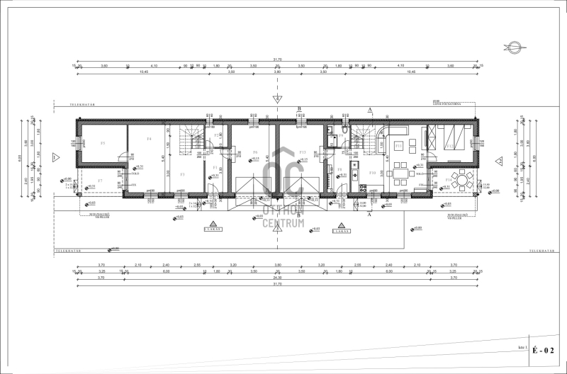
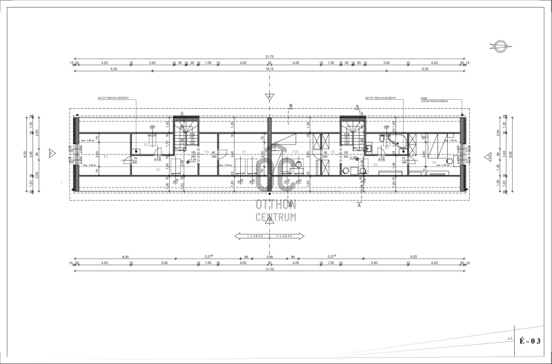
Részletes leírás
ÚJ ÉPÍTÉSŰ IKERHÁZ RÁCKEVÉN – MODERN KIALAKÍTÁS, TÁGAS TELEK, CSENDES KÖRNYÉK!

Helyszín: 2300 Ráckeve
Telek területe: 1236 m²
Lakások alapterülete: kb. 102 m² / lakás
Saját garázs és fedett terasz mindkét lakáshoz

Az ingatlanról

Eladásra kínálunk egy új építésű, kétlakásos (ikerház jellegű) családi házat Ráckeve egyik csendes, nyugodt, falusias hangulatú utcájában.
A ház földszintes + tetőtér beépítéses, modern elrendezésű, energiatakarékos és korszerű anyagokból épül.

Mindkét lakás külön bejárattal, saját garázzsal, fedett terasszal és nagy kerttel rendelkezik, így tökéletes választás családoknak vagy befektetőknek is.



Műszaki tartalom

Falazat: 30 cm Porotherm tégla + 15 cm hőszigetelés

Tető: fa szerkezet, 45° hajlásszögű, antracitszürke betoncserép

Homlokzat: törtfehér és középszürke dörzsölt nemesvakolat

Nyílászárók: 3 rétegű hőszigetelt műanyag ablakok

Fűtés: gázkazános központi fűtés + napelemes kiegészítő rendszer

Padlóburkolatok: kerámialap és laminált parketta

Zöldfelület arány: 73%

A ház energiatakarékos, korszerű hő- és hangszigeteléssel épül, a tervezett épületmagasság mindössze 3,65 m, így harmonikusan illeszkedik a környezetbe.

Környezet

Az ingatlan Ráckeve belterületén, csendes, murvás mellékutcában található, falusias lakóövezetben.
A telek hosszúkás, jól tájolt (D–É-i) és kiváló adottságú.
A környék csendes, családias, mégis könnyen megközelíthető.
A közművek (víz, villany) az utcában, csatorna előkészítve.

Az ingatlan értékesítésre épül, így az új tulajdonos kulcsrakész állapotban veheti át a házat.
A telek és az ikerház egyben vagy külön is megvásárolható (megbeszélés szerint).
További adatok
Telekterület: 1 236 m2
Kert mérete: 1 236 m2
Erkély mérete: -
Felszereltség: -
Parkolás: -
Kilátás: -
Egyéb extrák:  
Hirdető adatai
Hirdető neve: Otthon Centrum
Kapcsolattartó: Dégi János
Hirdető telefonszáma: +36 70 716 9051
Honlap: -
 
Üzenetet küldhet a hirdetőnek, árajánlatot tehet az ingatlanra:
Az Ön neve:
Az Ön e-mail címe:
Üzenet: