Ingatlan Televízió
Ingatlan Televízió
további hirdetések
adatlap bezárása

Teskánd 
 

Hivatkozási szám: 5888207
Ingatlan adatai
Irányár: 81 000 000 Ft
Típus: ház
Kategória: eladó
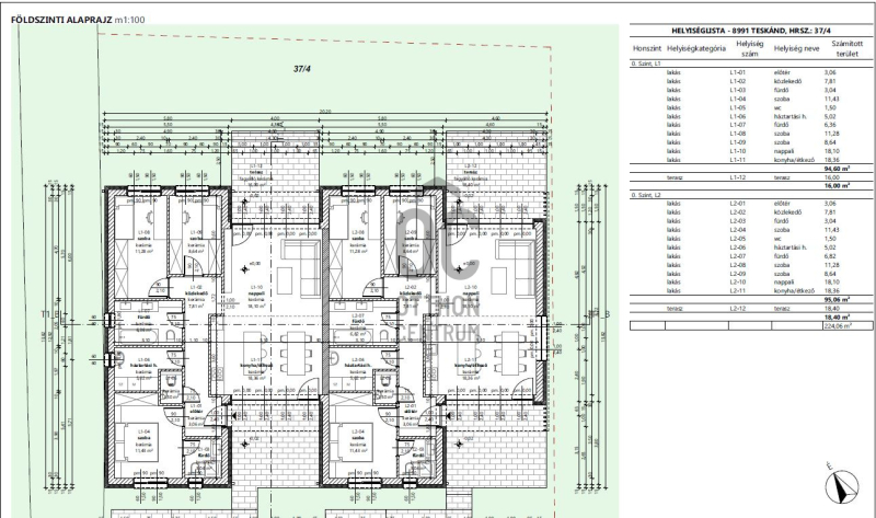
Alapterület: 94 m2
Fűtés: -
Állapota: új
Szobák száma: 4
Építés éve: 2026
Szintek száma: -
Részletes leírás
Teskándon, Zalaegerszegtől 5 km-re új építésű IKERHÁZ eladó.

Nem minden nap születik olyan otthon, ahol a reggeli napfény a konyhapultra rajzolja a csendet, ahol a nappali ablakán túl nem csak egy kert, hanem egy új élet kerete rajzolódik ki.
Ez az otthon nem akar többnek látszani, mint ami – de pont ezért lesz több. Egy 94 négyzetméteres, egyszintes ház, ahol minden négyzetméternek célja van: világos terek, élhető elrendezés, funkció és esztétika együtt lélegzik.

Jellemzők:

- 400 négyzetméteres telek. Nem túl sok, de épp elég – hogy ne kertészkedéssel teljen a hétvége, hanem kávézással a teraszon.
- Földszintes 94 nm-es, 4 szobás ikerház
- Hőszivattyús hűtés fűtés rendszer
- 16 nm-es terasz
- Saját gépkocsi beálló és udvar
- Világos tágas terek
- Leiertherm 30 N+F tégla falazat, 15cm homlokzati hőszigetelés
- A lakópark olyan lesz, mint egy jó szomszédság: csendes, rendezett, barátságos. Ahogy a filmekben. Vagy inkább: ahogy élni szeretne.

A befejezés 2026-ra várható – de az álom már most elkezdődhet. Mert néha a legjobb döntések nem hangosak. Csak egyszerűen... jó érzés rágondolni.

Teskándon épül. ÖNNEK . Hívjon bizalommal, hogy megtekintse, és tegye meg az első lépést új otthona felé!
További adatok
Telekterület: 400 m2
Kert mérete: 400 m2
Erkély mérete: 16 m2
Felszereltség: -
Parkolás: -
Kilátás: -
Egyéb extrák:  
Hirdető adatai
Hirdető neve: Otthon Centrum
Kapcsolattartó: Nikitscher-Rigó Diána
Hirdető telefonszáma: +36 70 412 5336
Honlap: -
 
Üzenetet küldhet a hirdetőnek, árajánlatot tehet az ingatlanra:
Az Ön neve:
Az Ön e-mail címe:
Üzenet: