Ingatlan Televízió
Ingatlan Televízió
további hirdetések
adatlap bezárása

Nagykovácsi 
 

Hivatkozási szám: 5887804
Ingatlan adatai
Irányár: 259 000 000 Ft
Típus: ház
Kategória: eladó
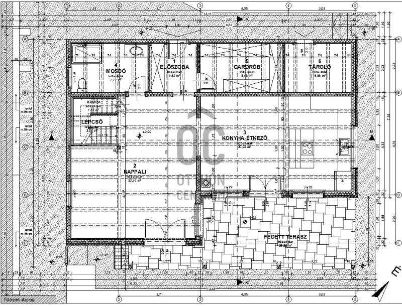
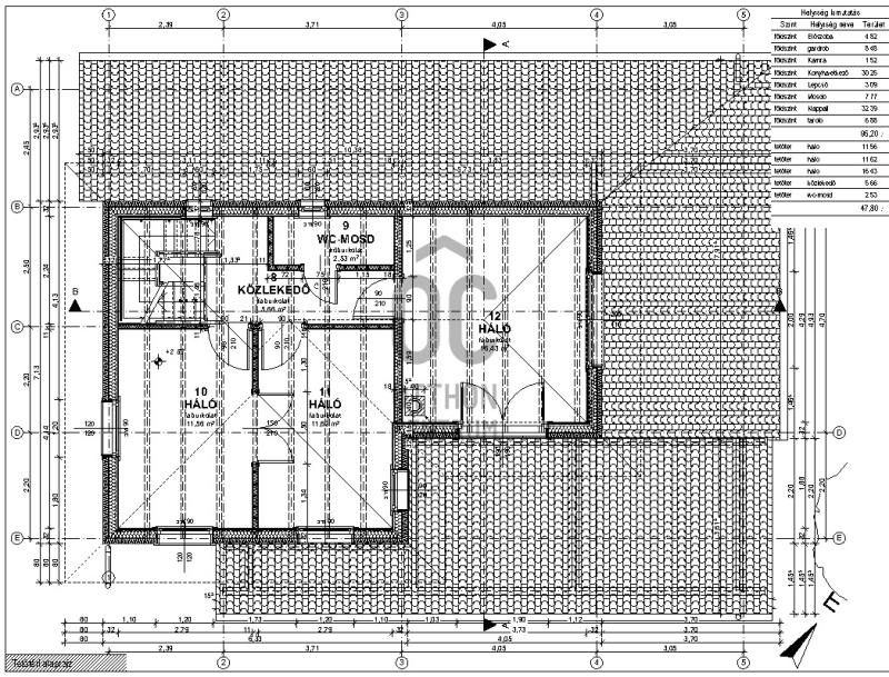
Alapterület: 156 m2
Fűtés: -
Állapota: -
Szobák száma: 4
Építés éve: 2019
Szintek száma: -
Részletes leírás
Eladó 156 nm-es, egyedi hangulatú családi ház Nagykovácsiban, erdő szomszédságában

Nagykovácsi egyik legszebb, legnyugodtabb részén, a Cseresznyés városrész forgalomtól mentes zsákutcájának végén kínálunk eladásra egy 2019-ben épült, 156 nm-es, teraszos családi házat gyönyörűen gondozott, intim kerttel és közvetlen erdőkapcsolattal.

✨ Főbb jellemzők:
-156 nm lakótér, tágas nappali–konyha–étkező, 3 szoba, gardrób, 2 fürdőszoba
-Panorámás franciaerkély kovácsoltvas korláttal
-Nyárikonyha, szaletli bográcsozóval és sparhelttel
-Baltresto thermowood fürdődézsa (200 cm átmérő, fával fűthető + elektromos fűtés és szűrőrendszer)
-Két tároló, automata öntözőrendszer
-Motoros alumínium redőnyök szúnyoghálóval
-Riasztórendszer (helyi biztonsági szolgálathoz bekötve)

???? Műszaki adatok:
-Építés éve: 2019
-Szerkezet: favázas, könnyűszerkezetes technológia
-Szigetelés: 120 mm EPS + 150 mm ásványgyapot – nyáron nem melegszik át, télen gyorsan felfűthető
-Nyílászárók: háromrétegű fa ablakok
-Burkolatok: tömör tölgy padló, tölgy lépcső, fa födém, mészkő terasz
-Fűtés: elektromos, programozható és online vezérelhető + Jotul öntöttvas kályha a nappaliban + padlófűtés a fürdőben
-Energiatakarékos kialakítás a kiemelkedő hőszigetelésnek köszönhetően

???? Konyha és étkező:
-Beépített tömör tölgy konyhabútor
-Bontott tégla fal és egyedi hangulatvilágítás (Olaszországból és Angliából rendelt lámpák)
-Beépített gépek: AEG sütő, 70 cm-es főzőlap, AEG mosogatógép, BEKO amerikai hűtő

???? Elhelyezkedés:
A telek egyik oldala közvetlenül az erdővel határos, így egész évben friss levegőt, nyugalmat és természetközeli élményt biztosít. Nagykovácsi zsákfalu, Natura 2000-es védett terület szívében, átmenőforgalom nélkül, ugyanakkor a mindennapi élethez szükséges infrastruktúra (bevásárlás, iskola, óvoda, gyógyszertár, orvosi rendelő, tömegközlekedés) kb. 15 perc sétával elérhető.

Ez az ingatlan nem csupán egy ház, hanem életérzés: a természet közelsége, a gondosan megválogatott prémium anyagok és a különleges részletek – a hangulatos kályhától a beépített konyhán át a fürdődézsáig – mind hozzájárulnak ahhoz, hogy egy igazán egyedi, értékálló otthont kapjon új tulajdonosa.

Jöjjön el, és tapasztalja meg személyesen ezt a különleges hangulatot!
További adatok
Telekterület: 723 m2
Kert mérete: 723 m2
Erkély mérete: 26 m2
Felszereltség: -
Parkolás: -
Kilátás: -
Egyéb extrák:  
Hirdető adatai
Hirdető neve: Otthon Centrum
Kapcsolattartó: Németh György
Hirdető telefonszáma: +36 70 388 5191
Honlap: -
 
Üzenetet küldhet a hirdetőnek, árajánlatot tehet az ingatlanra:
Az Ön neve:
Az Ön e-mail címe:
Üzenet: