Ingatlan Televízió
Ingatlan Televízió
további hirdetések
adatlap bezárása

Szigetcsép 
 

Hivatkozási szám: 5887046
Ingatlan adatai
Irányár: 91 900 000 Ft
Típus: ház
Kategória: eladó
Alapterület: 100 m2
Fűtés: gáz (cirko)
Állapota: új
Szobák száma: 5
Építés éve: 2024
Szintek száma: -
Részletes leírás
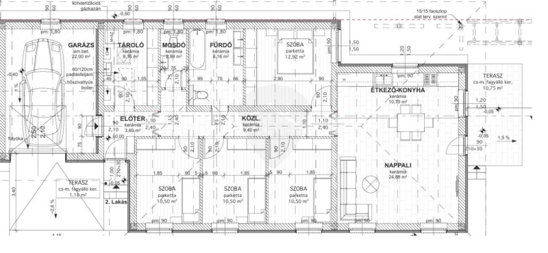
Szigetcsép új építésű részén, a Ráckevei Duna ág közelében, zöldövezetben 2 lakásos társasházként bejegyzett, csak a garázzsal szomszédos ikerházi lakásokat kínálok 555 m2 és 776 m2-es telkeken!
A ház hasznos, fűtött alapterülete 100 m2, nappali 4 hálószoba, duplakomfort, padlófűtés gáz cirkóval.
Távirányítással működő garázsajtó.

Az első ház ára 91,9 MFt; a hátsó házé 91,9 M Ft. Az egyik első ház plusz tartozéka és különlegessége a magas SZALETLI, amely lehet autóbeálló vagy akár fedett pihenőhely is

Az ingatlan egy csendes részen található, a település központjától autóval 3 percre, de gyalogosan is kb. 10 percre, ahol iskola, óvoda, bolt megtalálható, valamint könnyen elérhető a tömegközlekedés, Volán busz és a Ráckevei HÉV is.
CSOK PLUSZ is igénybe vehető! Így a ház ideális választás többgyermekes családok számára, akik csendes, nyugodt környezetben szeretnének élni.

Ne hagyja ki ezt a remek lehetőséget, vegye fel velem a kapcsolatot! Kérdéseire szívesen válaszolok, VÉGIG VEZETEM A FOLYAMATOKON.
Telefonhívásával, üzenetével hozzájárul adatainak a szükséges mértékű kezeléséhez. Várom jelentkezését!
További adatok
Telekterület: 555 m2
Kert mérete: 555 m2
Erkély mérete: 11 m2
Felszereltség: -
Parkolás: -
Kilátás: kertre néző
Egyéb extrák:  
Hirdető adatai
Hirdető neve: Körgyűrű Ingatlan Kft.
Kapcsolattartó: Marosvölgyiné Várszegi Aranka
Hirdető telefonszáma: +36 70 467 6860
Honlap: -
 
Üzenetet küldhet a hirdetőnek, árajánlatot tehet az ingatlanra:
Az Ön neve:
Az Ön e-mail címe:
Üzenet: