Ingatlan Televízió
Ingatlan Televízió
további hirdetések
adatlap bezárása

Valkó 
 

Hivatkozási szám: 5886947
Ingatlan adatai
Irányár: 62 000 000 Ft
Típus: ház
Kategória: eladó
Alapterület: 78 m2
Fűtés: elektromos
Állapota: -
Szobák száma: 3
Építés éve: 2023
Szintek száma: -
Részletes leírás
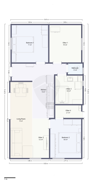
Valkó központjában, mégis az egyik legnyugodtabb, zöldövezeti részén kínálunk eladásra egy 2023-ban épült, tégla szerkezetű családi házat, amely 78 m² alapterületű, amerikai konyhás nappali + 3 külön nyíló szobával rendelkezik. Fő hálószobához egy kis gardróbszoba is tartozik! Egész házra jellemző a világos terek, nappaliban eltolható nagy méretű teraszajtó! Ez a családi otthon csodás 1513 nm-es telken helyezkedik el egy zsákutca végén. Egész utcában jó lakóközösség él.

A ház modern, energiatakarékos kialakítású:

10 cm EPS homlokzati szigetelés
30 cm tetőszigetelés
műanyag nyílászárók
btoncserép tetőfedés

A fűtés elektromos rendszerű, padlófűtéssel és hűtő-fűtő klímával megoldva, így az ingatlan egész évben kellemes hőmérsékletet biztosít. Minden helyiségben külön hőfokszabályozó panel került elhelyezésre, így minden helyiség hőmérséklete külön állítható!

A fürdőszobában sarokkád található, a WC külön helyiségben kapott helyet. Az amerikai konyhás nappali tágas és világos, ideális központi életteret nyújt a család számára.

A ház kiváló választás mindazoknak, akik nyugodt, természetközeli környezetben, de mégis Budapesttől elérhető távolságban keresnek új otthont.

Főbb adatok röviden:

Alapterület: 78 m²
Szobák: 3 szoba + amerikai konyhás nappali
Építés éve: 2023
Fűtés: elektromos padlófűtés, hűtő-fűtő klíma
Szigetelés: 10 cm EPS, 30 cm tetőszigetelés
Tető: betoncserép

Ez a családi ház megfelel az Otthon Start Programnak, az ingatlan hitelezhető!

Jöjjön el, szeressen bele! Hívjon még ma!
További adatok
Telekterület: 1 513 m2
Kert mérete: 1 513 m2
Erkély mérete: -
Felszereltség: -
Parkolás: -
Kilátás: udvari
Egyéb extrák:  
Hirdető adatai
Hirdető neve: Intor Ingatlan Powered By RH
Kapcsolattartó: Kertész Rebeka
Hirdető telefonszáma: +36 70 467 6820
Honlap: -
 
Üzenetet küldhet a hirdetőnek, árajánlatot tehet az ingatlanra:
Az Ön neve:
Az Ön e-mail címe:
Üzenet: