Ingatlan Televízió
Ingatlan Televízió
további hirdetések
adatlap bezárása

Ecséd 
 

Hivatkozási szám: 5886932
Ingatlan adatai
Irányár: 59 999 999 Ft
Típus: ház
Kategória: eladó
Alapterület: 119 m2
Fűtés: -
Állapota: új
Szobák száma: 4
Építés éve: 2025
Szintek száma: -
Részletes leírás
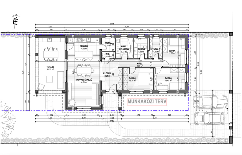
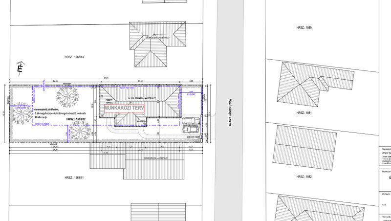
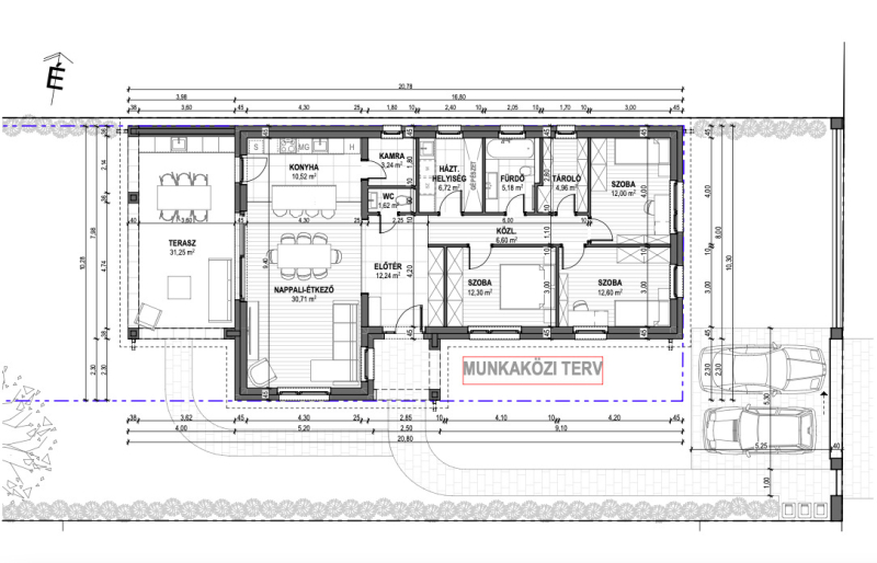
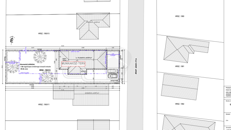
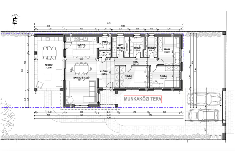
Ecséden, 750 m²-es telken, 119 m²-es új építésű családi ház eladó!
Az ingatlan modern elrendezésű:
– amerikai konyhás nappali
– 3 hálószoba
– fürdőszoba
– külön WC
– háztartási helyiség
– terasz
A ház energiatakarékos kivitelezésben épül, korszerű hőszivattyús fűtéssel, padlófűtéssel.
CSOK Plusz és Otthon Start igénybe vehető!
Főbb műszaki jellemzők
– 30-as nútféderes tégla falazat
– fa födém
– antracit betoncserép tetőhéjazat
– 15 cm EPS homlokzati szigetelés
– 10 cm Austrotherm AT-N100 padlószigetelés
– 25 cm ásványgyapot födémszigetelés
– 6 légkamrás, 3 rétegű üvegezésű nyílászárók
– 10 kW monoblockos hőszivattyú
– padlófűtés
Választható műszaki tartalom (alapárban)
– hidegburkolat: 3.000 Ft/m²-ig
– melegburkolat: 3.000 Ft/m²-ig
– csaptelepek: 15.000 Ft/db-ig
– kád vagy zuhany: 40.000 Ft-ig
– beltéri ajtók: 35.000 Ft/db-ig
Magasabb árkategóriás anyagok is választhatók a különbözet finanszírozásával.
Elektromos kiépítés
– szobák: 3 db konnektor
– nappali: 4 db konnektor + internet és kábeltévé kiállás
– konyha: 6 db konnektor
– világítás: helyiségenként 1 db
– kábeltévé előkészítés
– riasztó előkészítés
– kapumozgató elektronika előkészítés
Összegzés
– Lakótér: 119 m²
– Telek: 750 m²
– Elosztás: amerikai konyhás nappali + 3 szoba
– Terasz
– Korszerű hőszivattyús fűtés, padlófűtéssel
– CSOK Plusz és Otthon Start igénybe vehető
Kérésre teljes tervdokumentáció és részletes műszaki leírás is elérhető.
Díjmentes hiteltanácsadás és ügyintézés szintén elérhető nálunk!
További adatok
Telekterület: 750 m2
Kert mérete: 750 m2
Erkély mérete: 31 m2
Felszereltség: -
Parkolás: -
Kilátás: udvari
Egyéb extrák:  
Hirdető adatai
Hirdető neve: Intor Ingatlan Powered By RH
Kapcsolattartó: Salétros Dániel
Hirdető telefonszáma: +36 70 412 5816
Honlap: -
 
Üzenetet küldhet a hirdetőnek, árajánlatot tehet az ingatlanra:
Az Ön neve:
Az Ön e-mail címe:
Üzenet: