Ingatlan Televízió
Ingatlan Televízió
további hirdetések
adatlap bezárása

Gyöngyöshalász 
 

Hivatkozási szám: 5886931
Ingatlan adatai
Irányár: 59 990 000 Ft
Típus: ház
Kategória: eladó
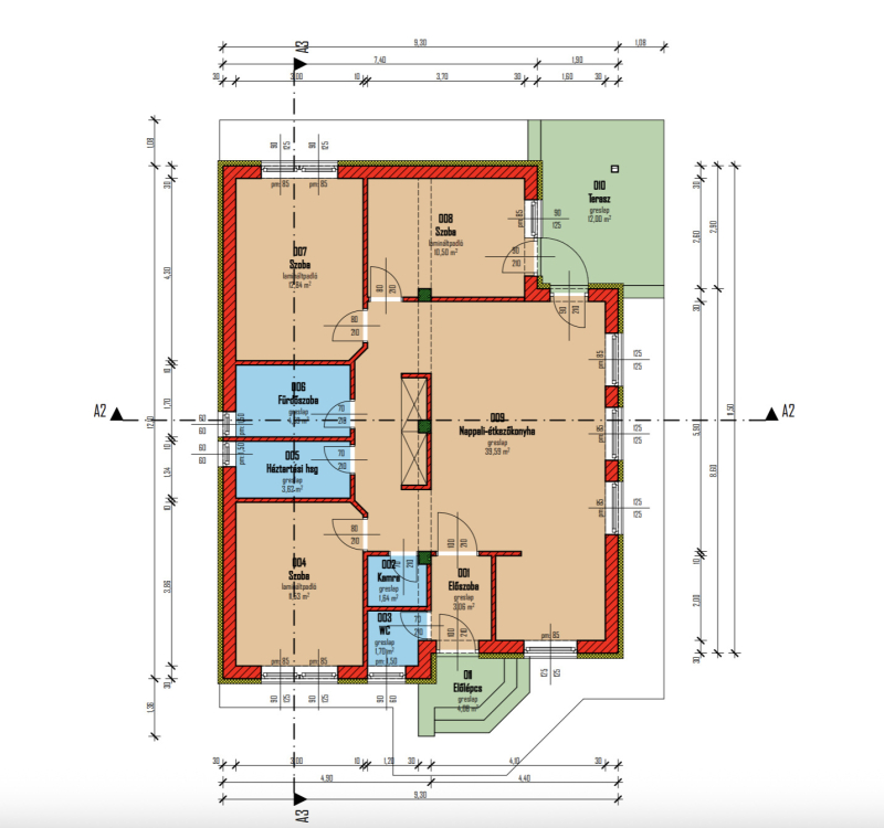
Alapterület: 89 m2
Fűtés: -
Állapota: új
Szobák száma: 4
Építés éve: 2025
Szintek száma: -
Részletes leírás
Eladó prémium családi otthon Gyöngyöshalászon!

ÚJ LAKÓPARKBAN, ZÁRT KÖZÖSSÉGGEL!

Gyöngyöshalászon, a fejlődő Toldi utcában eladásra kínálok egy nettó 89 m²-es, modern családi házat, amely 3 szobával és egy tágas nappalival biztosít kényelmes életteret. Az új lakópark sorompóval és portaszolgálattal védett bejárattal épül, így nyugodt, biztonságos környezetet kínál lakóinak.

Minőségi építési megoldások, energiatakarékos kialakítás
✔ Falazat: Porotherm P30N+F tégla, betonkoszorúval és fa födémszerkezettel
✔ Szigetelés:
✔ Lábazat: 10 cm lépésálló polisztirol
✔ Homlokzat: 10 cm grafitos hőszigetelés
✔ Födém: 25 cm ásványgyapot
✔ Nyílászárók: 3 rétegű üvegezésű, 6 légkamrás műanyag ablakok
✔ Fűtés: Levegő-víz hőszivattyús rendszer – alacsony fenntartási költségek, fenntartható megoldás

Személyre szabható belső tér
A belső kialakítás igény szerint választható burkolatokkal és szaniterekkel készül:
✅ Hidegburkolat: 3.000 Ft/m²
✅ Melegburkolat: 3.000 Ft/m²
✅ Beltéri ajtók: 30.000 Ft/db
✅ Fürdőkád: 40.000 Ft
✅ Csaptelepek: 15.000 Ft/db
Magasabb árkategóriájú termékek választására is van lehetőség!

Tökéletes választás minden korosztály számára
✔ Modern kialakítás és energiatakarékos technológiák
✔ Családosok, fiatalok és idősebbek számára egyaránt ideális otthon
✔ A zárt lakópark exkluzív környezetet biztosít
✔ Kiváló közlekedési lehetőségek

✔ Az építtető korábbi projektjei megtekinthetők referenciaként!
✔ Ne maradjon le erről a különleges lehetőségről!
Érdeklődjön most, és találja meg álmai otthonát!
További adatok
Telekterület: 800 m2
Kert mérete: 800 m2
Erkély mérete: -
Felszereltség: -
Parkolás: -
Kilátás: panorámás
Egyéb extrák:  
Hirdető adatai
Hirdető neve: Intor Ingatlan Powered By RH
Kapcsolattartó: Kollár Ábel Gergő
Hirdető telefonszáma: +36 70 412 5808
Honlap: -
 
Üzenetet küldhet a hirdetőnek, árajánlatot tehet az ingatlanra:
Az Ön neve:
Az Ön e-mail címe:
Üzenet: