Ingatlan Televízió
Ingatlan Televízió
további hirdetések
adatlap bezárása

Tápióság 
 

Hivatkozási szám: 5886929
Ingatlan adatai
Irányár: 57 999 000 Ft
Típus: ház
Kategória: eladó
Alapterület: 93 m2
Fűtés: -
Állapota: új
Szobák száma: 4
Építés éve: 2025
Szintek száma: -
Részletes leírás
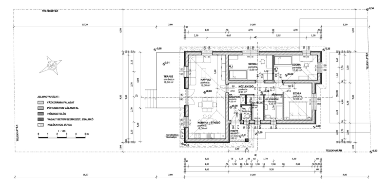
Tápióság központi részén, a Kölcsey utcában kínálunk megvételre három darab, új építésű, földszintes családi házat, amelyek egymás mellett, külön-külön 927 m²-es telkeken valósulnak meg. Mindhárom ingatlan teljesen önálló, 1/1 tulajdonú ház és saját telek formájában kerül kialakításra.

Főbb adatok:
- hasznos alapterület: ~93 m²
- elrendezés: amerikai konyhás nappali + 2 hálószoba + fürdő + háztartási helyiség + terasz
- falazat: 30 cm nútféderes tégla + 15 cm EPS homlokzati hőszigetelés
- alap: vasalt beton
- födém: fa gerendás, gombaölő szerrel kezelt
- tető: fa tetőszerkezet, antracit betoncserép
- nyílászárók: 3 rétegű üvegezésű műanyag ablakok, fehér műanyag párkánnyal
- bejárati ajtó: műanyag thermo, biztonsági zárral

Gépészet:
- fűtés és melegvíz: monoblokk levegő–víz hőszivattyú, padlófűtéssel
- elektromos hálózat: riasztó és kapumozgató előkészítés
- csatorna, vízóra, villanyóra: saját mérővel kiépítve

Burkolatok és belső kialakítás:
- hidegburkolat: 3.000 Ft/m²-ig
- melegburkolat: 3.000 Ft/m²-ig
- beltéri ajtók: 30.000 Ft/db-ig
- szaniterek: mosdó 20.000 Ft/db-ig, WC 20.000 Ft/db-ig, kád/zuhany 40.000 Ft/db-ig
- festés: fehér színben, két rétegben

Extrák:
- mindhárom ház külön helyrajzi számon
- tágas, 927 m²-es saját kert
- terasz (burkolata egyedi egyeztetés szerint)
- parkolási lehetőség a telken belül

Finanszírozás:
Az ingatlanok megfelelnek a CSOK Plusz és az Otthon Start és Falusi CSOK feltételeinek, így akár kedvezményes állami támogatással és kamattámogatott hitellel is megvásárolhatók.

*projekt ingatlanok, szerződéskötés után kezdődik a megépítésük, 20% önrész szükséges
További adatok
Telekterület: 927 m2
Kert mérete: 927 m2
Erkély mérete: -
Felszereltség: -
Parkolás: -
Kilátás: panorámás
Egyéb extrák:  
Hirdető adatai
Hirdető neve: Intor Ingatlan Powered By RH
Kapcsolattartó: Kollár Ábel Gergő
Hirdető telefonszáma: +36 70 412 5808
Honlap: -
 
Üzenetet küldhet a hirdetőnek, árajánlatot tehet az ingatlanra:
Az Ön neve:
Az Ön e-mail címe:
Üzenet: