Ingatlan Televízió
Ingatlan Televízió
további hirdetések
adatlap bezárása

Tápióság 
 

Hivatkozási szám: 5886927
Ingatlan adatai
Irányár: 69 900 000 Ft
Típus: ház
Kategória: eladó
Alapterület: 95 m2
Fűtés: -
Állapota: új
Szobák száma: 5
Építés éve: 2025
Szintek száma: -
Részletes leírás
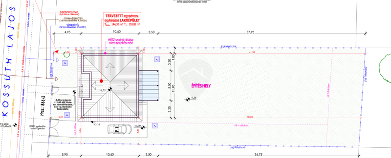
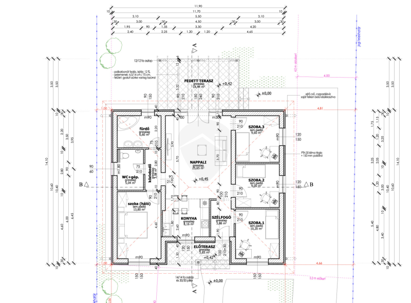
Tápióságon, a Kossuth Lajos utcában, egy 1000 m²-es telken, önálló családi ház kerül értékesítésre, amely nettó 95m²-es hasznos lakóteret kínál. 4 hálószoba + amerikai konyhás nappali.


CSOK Plusz támogatás és Falusi CSOK igényelhető!

Építési és műszaki jellemzők:

30-as nútféderes téglából épülő falazat.
Fa födém.
Antracit színű betoncserép fedés.
Homlokzat: 15 cm EPS szigetelés.
Padló: 10 cm Austrotherm AT-N100 hőszigetelés.
Födém: 25 cm ásványgyapot szigetelés.
Hat légkamrás, háromrétegű üvegezéssel ellátott nyílászárók.
A fűtési rendszer hőszivattyús, padlófűtéssel kombinálva biztosítja a meleget és a melegvizet.

Választható műszaki tartalom (meghatározott keretösszegen belül):

Hidegburkolat: 4000 Ft/m²-ig.
Melegburkolat: 4000 Ft/m²-ig.
Csaptelepek: 15.000 Ft/db.
Kád vagy zuhany: 40.000 Ft.
Beltéri ajtók: 35.000 Ft/db.
WC: hagyományos
Elektromos rendszer:

Konnektorok:
Szobák: 3 db.
Nappali: 4 db + internet és kábel-TV kiállás.
Konyha: 6 db.
Világítás: helyiségenként 1 pont.
Kábeltévé: előkészítés.

Extra opciók:

Magasabb kategóriás anyagok választása költségkülönbözet finanszírozása mellett.
Riasztó- és kapumozgató rendszer előkészítése.
Kérésre részletes tervdokumentáció és műszaki leírás is elérhető. A kivitelező korábbi referenciamunkái Tápióságon, Kókán és Sülysápon megtekinthetők előzetes egyeztetés alapján.



Átadás várható időpontja: 2026 2. fele.

Bármilyen kérdés, kérés esetén állunk rendelkezésre telefonon, üzenetben, vagy személyesen Isaszegi irodánkban! INTOR INGATLAN CSAPAT
További adatok
Telekterület: 1 000 m2
Kert mérete: 1 000 m2
Erkély mérete: 20 m2
Felszereltség: -
Parkolás: -
Kilátás: udvari
Egyéb extrák:  
Hirdető adatai
Hirdető neve: Intor Ingatlan Powered By RH
Kapcsolattartó: Kollár Ábel Gergő
Hirdető telefonszáma: +36 70 412 5808
Honlap: -
 
Üzenetet küldhet a hirdetőnek, árajánlatot tehet az ingatlanra:
Az Ön neve:
Az Ön e-mail címe:
Üzenet: