Ingatlan Televízió
Ingatlan Televízió
további hirdetések
adatlap bezárása

Kóka 
 

Hivatkozási szám: 5886924
Ingatlan adatai
Irányár: 69 990 000 Ft
Típus: ház
Kategória: eladó
Alapterület: 94 m2
Fűtés: -
Állapota: új
Szobák száma: 3
Építés éve: 2026
Szintek száma: -
Részletes leírás
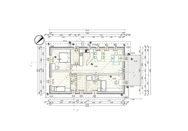
Kókán a Nagykátai úton, egy 94 m2-es hasznos lakóterű egyszintes lakóingatlant kínálunk megvételre.
Jól átgondolt, világos, tágas terek jellemzik, 3 hálószoba + amerikai konyhás nappali, WC, fürdőszoba, háztartási helyiség található az ingatlanban.
Ingatlanhoz tartozik egy 17 m2-es terasz, melyre a nappaliból nyíló ajtókon keresztül lehet kijutni. Igény esetén nagyobb terasz is tervezhető.
Igény esetén, plusz költség fejében garázs illetve fedett gépkocsi beálló kialakítása is lehetséges.
Az alaprajzon még lehet módosítani a vevő igényei szerint!

CSOK Plusz támogatás, Otthon Start igényelhető!

Építési és műszaki jellemzők:

30-as tégla falazat, 10 cm-es Ytong belső falazat.
Fa födém.
Antracit színű betoncserép fedés.
Homlokzat: 15 cm EPS szigetelés.
Talajnedvesség szigetekés: 1 rtg GV4
Padló: 10 cm lépésálló szigetelés.
Födém: fa gerendák gombaölő szerrel kezelve, 25 cm ásványgyapot szigeteléssel.
Nyílászárók: háromrétegű üvegezéssel ellátott thermo nyílászárók
A fűtési rendszer hőszivattyús, padlófűtéssel kombinálva biztosítja a meleget és a melegvizet.

Utcafronti kerítés: színezett zsalukő pillér + vas kétszárnyú kapu fa lécezéssel

Választható műszaki tartalom (meghatározott keretösszegen belül):

Hidegburkolat: 3000 Ft/m²-ig.
Melegburkolat: 3000 Ft/m²-ig.
Csaptelepek: 15.000 Ft/db
Kád vagy zuhany: 40.000 Ft
Mosdó: 40.000 Ft/db
WC: 25.000 Ft/db

Elektromos rendszer:

Konnektorok:
Szobák: 3 db
Nappali: 4 db + internet és kábel-TV kiállás
Konyha: 6 db
Világítás: helyiségenként 1 pont
Kábeltévé: előkészítés
Riasztó: előkészítés
Kapumozgató elektronika: előkészítés

Extra opciók:

Magasabb kategóriás anyagok választása költségkülönbözet finanszírozása mellett.
Riasztó- és kapumozgató rendszer előkészítése.

Most érdemes vásárolni, mert a piacon az ingatlan árak tekintetében még mindig emelkedés várható!
Hívj még ma!
További adatok
Telekterület: 1 022 m2
Kert mérete: 1 022 m2
Erkély mérete: 17 m2
Felszereltség: -
Parkolás: -
Kilátás: udvari
Egyéb extrák:  
Hirdető adatai
Hirdető neve: Intor Ingatlan Powered By RH
Kapcsolattartó: Kertész Rebeka
Hirdető telefonszáma: +36 70 467 6820
Honlap: -
 
Üzenetet küldhet a hirdetőnek, árajánlatot tehet az ingatlanra:
Az Ön neve:
Az Ön e-mail címe:
Üzenet: