Ingatlan Televízió
Ingatlan Televízió
további hirdetések
adatlap bezárása

Hort 
 

Hivatkozási szám: 5886914
Ingatlan adatai
Irányár: 60 000 000 Ft
Típus: ház
Kategória: eladó
Alapterület: 93 m2
Fűtés: -
Állapota: új
Szobák száma: 3
Építés éve: 2026
Szintek száma: -
Részletes leírás
Kivételes lehetőség! 8 db projekt ingatlan kerül értékesítésre a Kertész utcában. Költözzön Hort újépítésű részére!

Eladásra kínálunk Horton, 1400 nm-es telken elhelyezkedő új építésű ingatlant.
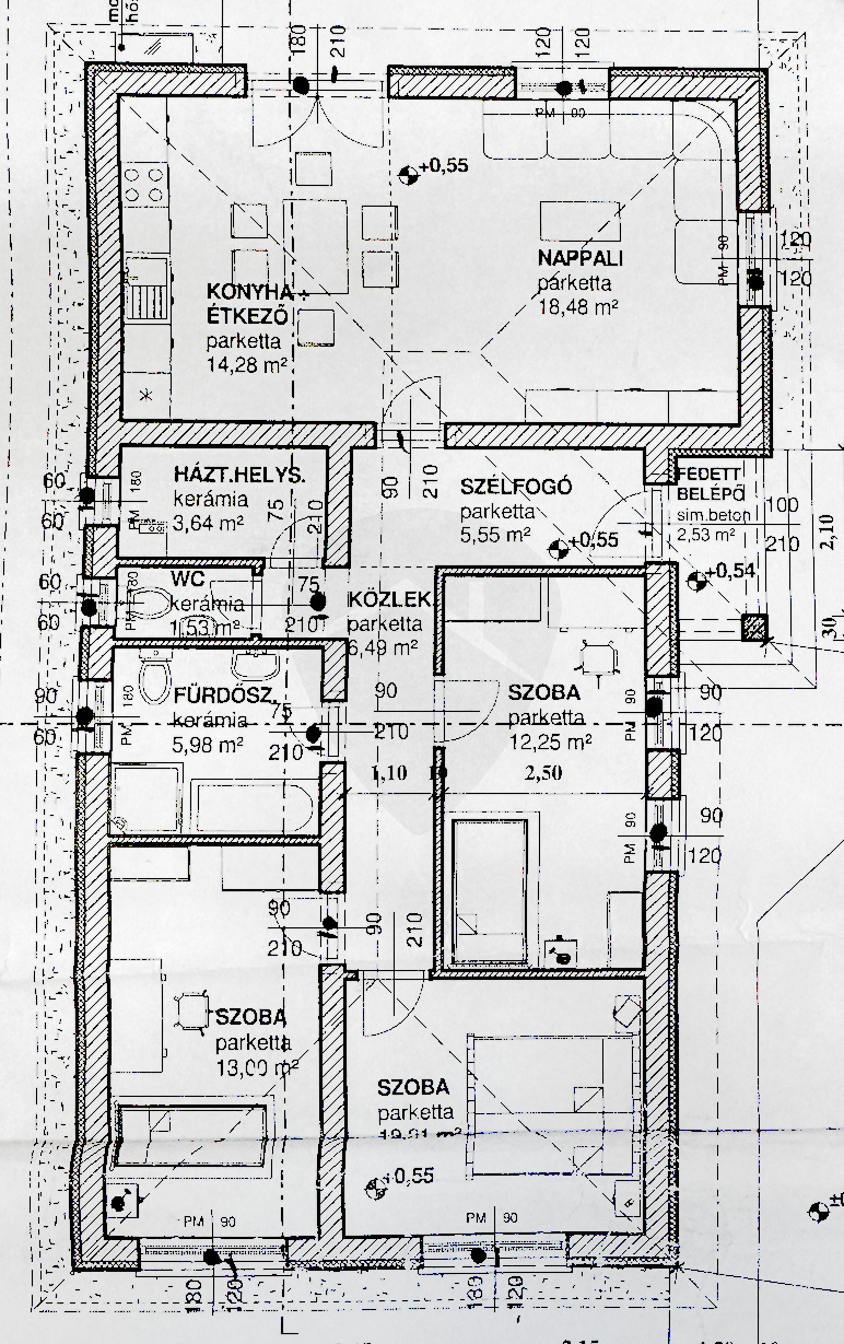
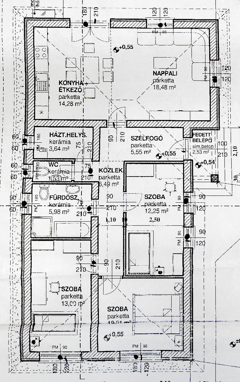
A megvalósuló családi ház 93 nm lakóterületű, mely amerikai konyhás nappali, 3 szoba, WC, fürdőszoba, háztartási helyiségből áll.

Az ingatlan 30-as nútféderes tégla falazóelemből épül, fa födémmel.
A tető antracit színű betoncserép héjazatot kap.
A homlokzat 15 cm EPS, a padló 10 cm Austrotherm AT-N100-as, míg a vízszintes födém 25 cm ásványgyapot hőszigetelést kap.

Épület nyílászárók: fehér műanyag, háromrétegű hőszigetelt üvegezéssel készülnek.
Belső nyílászárók: furnérozott ajtók, igény szerint üvegezéssel.

A fűtésről monoblokkos hőszivattyús rendszer gondoskodik, padlófűtéssel.

A műszaki tartalom az alábbi kereteken belül szabadon választható:

Hidegburkolat: 3.000 Ft/m²-ig
Melegburkolat: 3.000 Ft/m²-ig
Csaptelepek: 15.000 Ft/db
Kád vagy zuhany: 40.000 Ft/db
Beltéri ajtók: 35.000 Ft/db
Elektromos rendszer kiépítése:
Szobák: 3 konnektor/helyiség
Nappali: 4 konnektor + internet- és kábeltévé előkészítés
Konyha: 6 konnektor
Világítás: helyiségenként 1 kiállás
Kábeltévé: előkészítve
A megadott költségkeret feletti műszaki tartalom is választható, a különbözet finanszírozásával.
Előkészítésre kerül a riasztórendszer és a kapunyitó elektronika is.

Igény esetén komplett tervdokumentációt és részletes műszaki leírást biztosítunk.

Várható átadás: szerződés után 8 hónap

Ingyenes hiteltanácsadás és CSOK Plusz, Otthon Start ügyintézés!
Bankfüggetlen hitelcentrumunk az összes hazai bank és hitelintézet ajánlatát versenyezteti az Ön érdekében — díjmentesen.
- Egyedi, bankfiókban nem elérhető kamat- és díjkedvezmények
- Hitelképesség előminősítés
- Idő-, energia- és pénzmegtakarítás
- Teljes körű ügyintézés
További adatok
Telekterület: 1 400 m2
Kert mérete: 1 400 m2
Erkély mérete: -
Felszereltség: -
Parkolás: -
Kilátás: utcai
Egyéb extrák:  
Hirdető adatai
Hirdető neve: Intor Ingatlan Powered By RH
Kapcsolattartó: Kertész Rebeka
Hirdető telefonszáma: +36 70 467 6820
Honlap: -
 
Üzenetet küldhet a hirdetőnek, árajánlatot tehet az ingatlanra:
Az Ön neve:
Az Ön e-mail címe:
Üzenet: