Ingatlan Televízió
Ingatlan Televízió
további hirdetések
adatlap bezárása

Hatvan 
 

Hivatkozási szám: 5886825
Ingatlan adatai
Irányár: 88 000 000 Ft
Típus: ház
Kategória: eladó
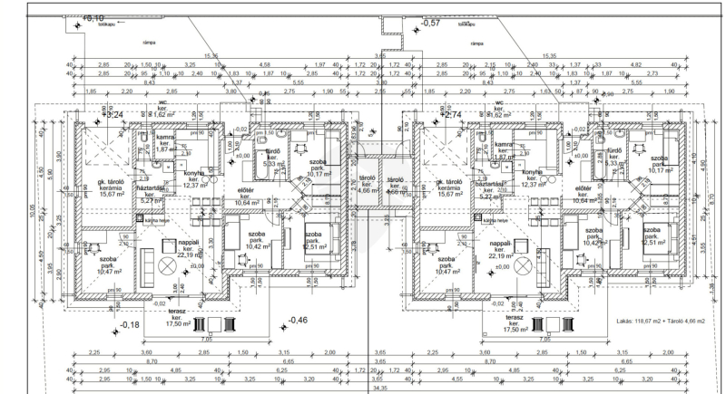
Alapterület: 118 m2
Fűtés: -
Állapota: új
Szobák száma: 4
Építés éve: 2026
Szintek száma: -
Részletes leírás
Fedezd fel álmaid otthonát Hatvan szívében! Ez az új építésű, modern tégla építésű ikerház 118 négyzetméteren terül el, és minden igényt kielégít, amit csak egy család kívánhat. A házban négy tágas szoba vár rád, ahol a család minden tagja megtalálja a maga helyét. A fürdőszoba elegáns kialakítású, ideális a napi felfrissüléshez, míg a 17 négyzetméteres terasz a pihenés és a kikapcsolódás tökéletes helyszínévé válik. Az elektromos fűtőpanelek és a napelemek biztosítják a környezetbarát és gazdaságos energiafogyasztást, így a fenntartási költségek alacsonyan tarthatók. A légkondicionáló pedig garantálja a kellemes hőmérsékletet a nyári hónapokban.

A csendes helyen található az ingatlan, ezért ideális választás mindazok számára, akik szeretnének elvonulni a város zajától. A környék zöldövezeti jellege és barátságos szomszédsága tökéletes hátteret biztosít a családi élethez. Iskolák, boltok és közlekedési lehetőségek mind megtalálhatók a városban, így a mindennapi élet egyszerű és kényelmes.

Közlekedés szempontjából is ideális helyen fekszik. Autóval könnyen megközelíthető Budapest, és a tömegközlekedés is jól kiépített, így gyorsan elérheted a város többi részét is. A saját garázs pedig extra kényelmet nyújt, hiszen nem kell az utcán parkolnod.

Várható átadás: 2027. I. negyedév.

Ne hagyd ki ezt a páratlan lehetőséget, hogy egy modern, zöld otthonra lelj! Ha bármilyen kérdésed van, vagy szeretnéd megtekinteni az ingatlant, keress bátran! A CSOK Plusz lehetőség is elérhető, így még könnyebbé válik az ingatlanvásárlás. Éld át a csendes környék nyugalmát és a modern otthon kényelmét!
További adatok
Telekterület: 717 m2
Kert mérete: 717 m2
Erkély mérete: 17 m2
Felszereltség: -
Parkolás: -
Kilátás: kertre néző
Egyéb extrák:  
Hirdető adatai
Hirdető neve: Ingatlanmentor powered by Rock Home
Kapcsolattartó: Horváth Tibor
Hirdető telefonszáma: +36 70 467 6871
Honlap: -
 
Üzenetet küldhet a hirdetőnek, árajánlatot tehet az ingatlanra:
Az Ön neve:
Az Ön e-mail címe:
Üzenet: