Ingatlan Televízió
Ingatlan Televízió
további hirdetések
adatlap bezárása

Budapest, V.kerület 
 

Hivatkozási szám: 5886606
Ingatlan adatai
Irányár: 139 900 000 Ft
Típus: lakás (újépítésű)
Kategória: eladó
Alapterület: 83 m2
Fűtés: -
Állapota: új
Szobák száma: 2
Építés éve: -
Szintek száma: 1
Részletes leírás
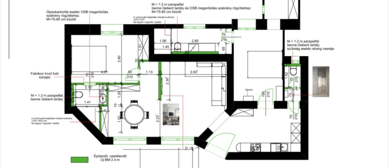
Exkluzív lehetőség a Váci utca szívében – felújítandó lakás komplett tervekkel

Eladásra kínálunk a Váci utcában, egy patinás épület első emeletén elhelyezkedő, felújítás előtt álló lakást, amely kivételes lehetőséget biztosít arra, hogy új tulajdonosa egy előre megtervezett, magas esztétikai és műszaki színvonalú otthont vagy befektetést valósítson meg.

Az ingatlanhoz kész látványtervek, teljes körű tervezői dokumentáció és megvalósítható koncepció áll rendelkezésre, melyek egy tapasztalt tervező munkáját dicsérik. A tervek kivitelezése – külön megállapodás keretében – szintén lehetséges, így a vásárló akár egy teljesen koordinált projektet is átvehet.

A lakás jelenleg teljesen visszabontott állapotban van, a meglévő válaszfalakat az alaprajz pontosan jelöli. Az értékesítés első körben ebben a készültségi szintben történik, ideális lehetőséget teremtve egyéni igények szerinti alakításra.

Az ingatlan új, szabványosított mérőhellyel rendelkezik, amely a későbbi felújítás műszaki alapját már biztosítja.

Extra értékek, amelyek igazán kiemelik a kínálatból:
• 3 rétegű fa nyílászárókat biztosítunk és be is építjük,
• Daikin hőszivattyús rendszert biztosítunk,
• a padlófűtés kiépítése megtörtént, valamint a betonozási munkálatokat is vállaljuk.

Ez az ajánlat kiváló választás mindazok számára, akik Budapest egyik legikonikusabb utcájában keresnek értékálló, egyedi és magas színvonalon megvalósítható ingatlant.
További adatok
Telekterület: -
Kert mérete: -
Erkély mérete: -
Felszereltség: -
Parkolás: -
Kilátás: udvari
Egyéb extrák:  
Hirdető adatai
Hirdető neve: GDN Ingatlanhálózat
Kapcsolattartó: Gecse Balázs
Hirdető telefonszáma: +36-70-336-9901
Honlap: -
 
Üzenetet küldhet a hirdetőnek, árajánlatot tehet az ingatlanra:
Az Ön neve:
Az Ön e-mail címe:
Üzenet: