Ingatlan Televízió
Ingatlan Televízió
további hirdetések
adatlap bezárása

Szigetmonostor 
 

Hivatkozási szám: 5867975
Ingatlan adatai
Irányár: 29 900 000 Ft
Típus: telek
Kategória: eladó
Alapterület: -
Fűtés: -
Állapota: -
Szobák száma: -
Építés éve: -
Szintek száma: -
Részletes leírás
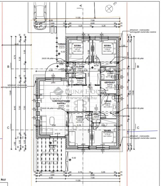
Szigetmonostor újépítésű részén eladó egy építési engedéllyel rendelkező lakóövezeti, összközműves telek!Az Ófalu és Horány közt létrejött újépítésű részen helyezkedik el, 500méterre óvodától, bölcsödétől.Szentendre és Dunakeszi irányába is egyelő távolságra az autós révektől.A telek lakóövezeti, összközműves, 760nm-es, sík és aszfaltozott utca mellett helyezkedik el.Egy 122nm-es egyszintes családi ház építési terveivel rendelkezik. Ezekkel együtt eladó.A családi ház megépítése opcionálisan megoldható.További kérdés és a megtekintéssel kapcsolatban hívjon bizalommal a hét minden napján!
További adatok
Telekterület: 760 m2
Kert mérete: -
Erkély mérete: -
Felszereltség: -
Parkolás: -
Kilátás: -
Egyéb extrák:  
Hirdető adatai
Hirdető neve: dh.hu - Szentendre, Városkapu
Kapcsolattartó: Virág Olga
Hirdető telefonszáma: +36706223636
Honlap: -
 
Üzenetet küldhet a hirdetőnek, árajánlatot tehet az ingatlanra:
Az Ön neve:
Az Ön e-mail címe:
Üzenet: