Ingatlan Televízió
Ingatlan Televízió
további hirdetések
adatlap bezárása

Kaposmérő 
 

Hivatkozási szám: 5867763
Ingatlan adatai
Irányár: 35 500 000 Ft
Típus: ház
Kategória: eladó
Alapterület: 70 m2
Fűtés: egyéb
Állapota: felújított
Szobák száma: 2
Építés éve: 1978
Szintek száma: 1
Részletes leírás
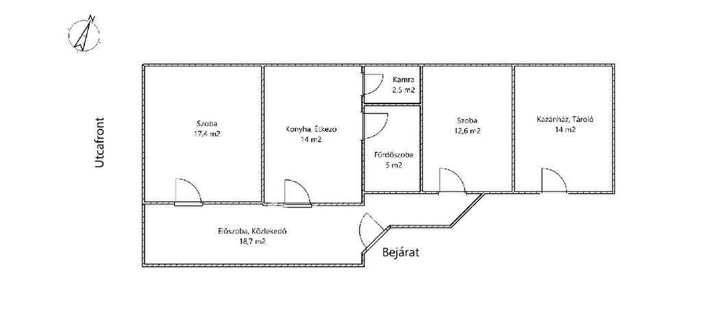
Kaposmérőn a főúthoz közel, mégis csendes utcában várja új lakóit ez a kedves házikó! A 70 m2-es ingatlan nagy része felújításra került. 2 nagy szoba, sarokkádas fürdőszoba wc-vel, konyha, kamra, előszoba szolgálja az itt élők kényelmét. A két szoba laminált parkettával, míg az épület többi része járólappal burkolt. A víz- és villanyvezeték felújításra került, melynek záró akkordja egy teljesen új villanyóra felszerelése volt! A kinti zord időt egy vegyes tüzelésű kazán melege teszi komfortossá, mely radiátorokon keresztül érkezik a helyiségekbe. A vegyes falazat ellenére a ház egyáltalán nem vizesedik. Nyílászárói redőnyösek. A telek 516 m2. Nyáron szép pázsit díszíti az udvart, melyen egy kocsibeálló kapott helyet. Ajánljuk mindazoknak, akik szeretnének a somogyi fővároshoz közel, mégis nyugodt, csendes helyen élni. A településen megtalálható bölcsőde, óvoda, általános iskola, orvosi ellátás, többféle vegyesbolt, pékség, húsbolt. Kaposvártól mindössze 5 kilométerre várja új tulajdonosát ez a jó állapotú ingatlan!
Az ingatlan alkalmas a 3%-os Otthon Start Programra! Ennek teljes körű hitelügyintézését is lebonyolítjuk!
Amennyiben felkeltette érdeklődését, kérem hívjon bizalommal!
Ref. szám: M321527
Kuti Dávid
További adatok
Telekterület: 516 m2
Kert mérete: -
Erkély mérete: -
Felszereltség: -
Parkolás: lakáshoz van kültéri parkoló
Kilátás: -
Egyéb extrák:  
Hirdető adatai
Hirdető neve: otpip.hu - Siófok Sió utca 10 - OTP Ingatlanpont Iroda
Kapcsolattartó: Kuti Dávid
Hirdető telefonszáma: +36207751127
Honlap: -
 
Üzenetet küldhet a hirdetőnek, árajánlatot tehet az ingatlanra:
Az Ön neve:
Az Ön e-mail címe:
Üzenet: