Ingatlan Televízió
Ingatlan Televízió
további hirdetések
adatlap bezárása

Debrecen 
 

Hivatkozási szám: 5867207
Ingatlan adatai
Irányár: 62 000 000 Ft
Típus: ház
Kategória: eladó
Alapterület: 100 m2
Fűtés: elektromos
Állapota: új
Szobák száma: 3
Építés éve: 2026
Szintek száma: 1
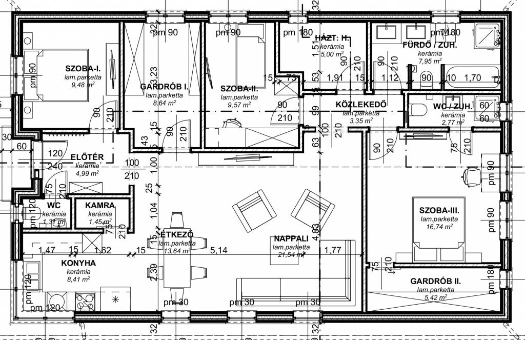
Részletes leírás
Elhelyezkedés: Debrecen, Bánk Fogoly utca
Ingatlan típusa: Szabadon álló családi ház
Építési technológia: Fém-könnyűszerkezetes, modern
Energetikai besorolás: A+
Bruttó alapterület: 100 m²
Fűtés/hűtés: Légkondicionáló (klíma)

Elrendezés:

- Nappali

- Amerikai konyha

- Kamra

- 3 db hálószoba

- 1 db fürdőszoba (kád/zuhany + 2 WC)

- 1 db külön WC/mosóhelyiség

Műszaki jellemzők részletesen:

- Beton síkalap, zsalukő lábazat, szerelőbeton

- Bitumenes szigetelő lemez + 2 cm lépésálló XPS szigetelés

- Falazat egyedi acélvázas szerkezet

- Külső fal: 10 cm szendvicspanel + 5 cm PS szigetelés + 1,5 mm nemesvakolat

- Belső burkolat: Gipszkarton

- Födém & Mennyezet: Gipszkarton mennyezet

- Párazáró fólia + szálas hőszigetelés (kőzetgyapot)

- Tetőszerkezet & Fedés: Vasszerkezet, Cserepes lemezfedés (speciális anti-kondenzációs filc bevonattal), Páraáteresztő fólia

- Nyílászárók: 3 rétegű, 7 légkamrás, argon gázzal töltött műanyag ablakok és ajtók

- Épületgépészet: 2 db Gree márkájú, egyenként 3.5 kW teljesítményű klímaegység, 1 db villanybojler

- Burkolatok (keretösszegek az áron belül)
A vevő a kínált keretösszegen belül választhat anyagot. A kiválasztott anyag beszerzése, szállítása és beépítése az árban benne van.

- Szániterek (mosdók, WC): 200 000 Ft-ig

- Járólapok: 350 000 Ft-ig

- Csempék: 250 000 Ft-ig

- Laminált padló (lakótér): 200 000 Ft-ig

- Teraszburkolat: 100 000 Ft-ig

A hirdetés adatai tájékoztatók, nem minősülnek szerződéses kötelezettségvállalásnak.
További információért hívjon bizalommal, akár hétvégén is. Megtekintésre telefonos egyeztetés alapján van lehetőség. (06 30 9536 051)
További ingatlankinálatunkat megtekintheti a WWW.TELEINGATLAN.HU weboldalunkon.

Referencia szám: A20260128
További adatok
Telekterület: 780 m2
Kert mérete: -
Erkély mérete: -
Felszereltség: -
Parkolás: lakáshoz van kültéri parkoló
Kilátás: -
Egyéb extrák:  
Hirdető adatai
Hirdető neve: gmail.com - Teleingatlan Portál
Kapcsolattartó: Balogh Attila
Hirdető telefonszáma: 06309536051
Honlap: -
 
Üzenetet küldhet a hirdetőnek, árajánlatot tehet az ingatlanra:
Az Ön neve:
Az Ön e-mail címe:
Üzenet: