Ingatlan Televízió
Ingatlan Televízió
további hirdetések
adatlap bezárása

Poroszló 
 

Hivatkozási szám: 5860819
Ingatlan adatai
Irányár: 49 900 000 Ft
Típus: kereskedelmi/ipari ingatlan
Kategória: eladó
Alapterület: 98 m2
Fűtés: elektromos
Állapota: felújított
Szobák száma: -
Építés éve: 2020
Szintek száma: -
Részletes leírás
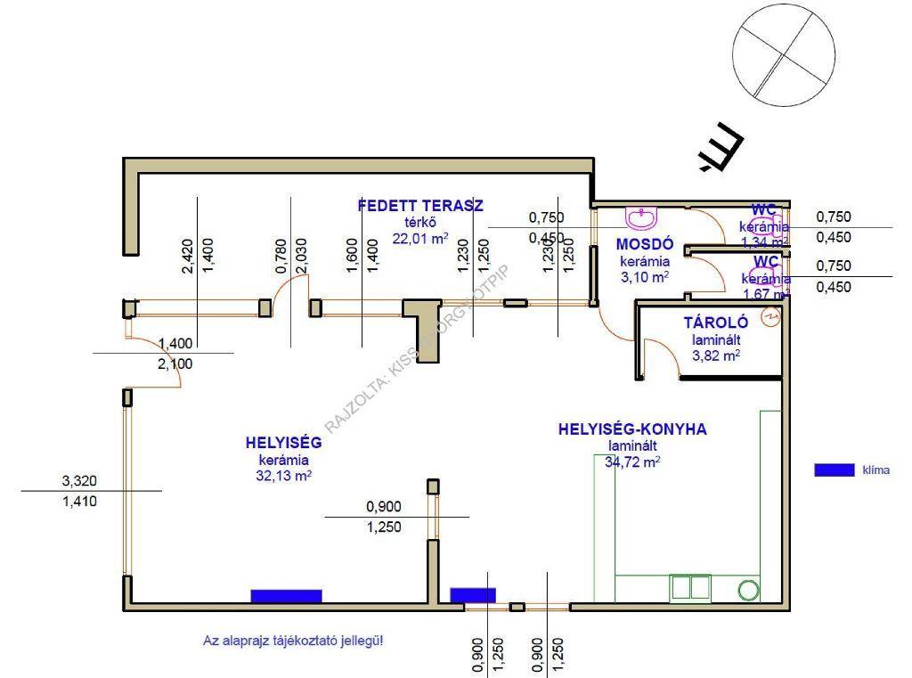
VÁLLALKOZÓK, BEFEKTETŐK FIGYELEM! A TISZA-TAVI POROSZLÓN, FREKVENTÁLT HELYEN, A 33-AS FŐÚT MELLETT, ELADÓ 269 M2 TERÜLETŰ TELKEN EGY 98,79 M2-ES, KIVÁLÓ ÁLLAPOTÚ, JÓL MEGKÖZELÍTHETŐ, ÖSSZKÖZMŰVES ÜZLETHELYISÉG A TISZA-TÓTÓL 500 M-RE, ELSŐSORBAN ÜZLETI CÉLRA VAGY VENDÉGLÁTÁSRA AJÁNLJUK!!! Az ingatlan elhelyezkedése miatt alkalmas lehet kereskedelmi, vendéglátó, lakó, vendégház funkcióra egyaránt, a telek 4 oldalról körbekerített. A vendéglátó egység (bár) jelenleg is működik, jól bejáratott hely. Az üzlethelyiség hasznos alapterülete: 76,78 m2 + 22,01 m2 fedett terasz, együtt 98,79 m2.
Közelben: üzletek, intézmények, 33-as főút, kikötők, Ökocentrum (Tisza-tó és a szabadvízi strand 500 m, ökocentrum: 180 m).
Az ingatlannak egy tulajdonosa van, tulajdoni lapja tiszta (per-, teher, és igénymentes)!!!
Telekterület: 269 m2.
Közművek: gázcsonk, víz, szennyvíz, villany.
Poroszlón élénk az idegenforgalom, itt található a Tisza-tavi Ökocentrum, szabad-stranddal, kikötővel rendelkezik, a távolsági busz, vasúti, közúti közlekedése kiváló (33. sz. főút a településen keresztül megy), M3-as autópálya 21 km.
Amennyiben hirdetésem felkeltette érdeklődését, keressen bizalommal bármikor, lehetőleg a +36 30 299 74 16 telefonszámon. További kérdéseire is készséggel válaszolok. Az adásvételi szerződés megkötéséhez - igény szerint - megbízható ügyvédi közreműködést biztosítunk, és segítséget nyújtunk az adásvételhez kapcsolódó ügyek intézéséhez, esetleges hiteligényléshez.
Irányár: 49,9 millió Ft
Referenciaszám: M319734
További adatok
Telekterület: -
Kert mérete: -
Erkély mérete: -
Felszereltség: -
Parkolás: -
Kilátás: -
Egyéb extrák:  
Hirdető adatai
Hirdető neve: otpip.hu - Tiszafüred Fő utca 29 - OTP Ingatlanpont Iroda
Kapcsolattartó: Kiss György
Hirdető telefonszáma: +36-30-299-7416
Honlap: -
 
Üzenetet küldhet a hirdetőnek, árajánlatot tehet az ingatlanra:
Az Ön neve:
Az Ön e-mail címe:
Üzenet: