Ingatlan Televízió
Ingatlan Televízió
további hirdetések
adatlap bezárása

Bogács 
 

Hivatkozási szám: 5860749
Ingatlan adatai
Irányár: 34 900 000 Ft
Típus: ház
Kategória: eladó
Alapterület: 62 m2
Fűtés: egyéb
Állapota: felújított
Szobák száma: 1
Építés éve: 1950
Szintek száma: 1
Részletes leírás
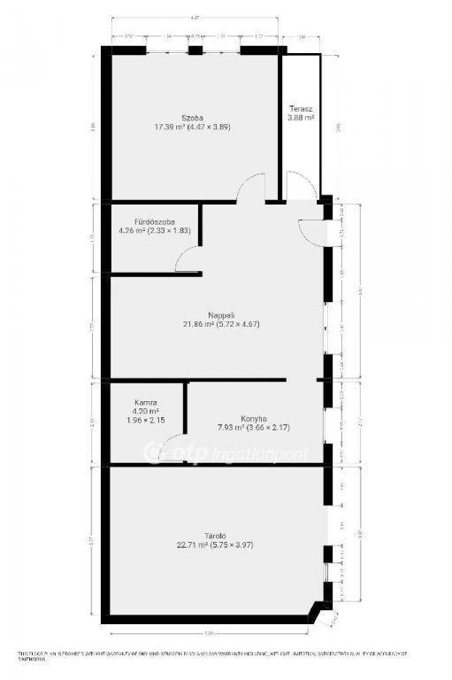
Eladó 62 m2-es, 1 szobás családi ház Bogácson, 870 m2-es telken

Bogács csendes részén eladásra kínálok egy 62 m2 alapterületű, 1 szobás családi házat, 870 m2-es telken.

Az ingatlan jelenlegi fűtését fatüzelésű kályha biztosítja. Az elektromos és a vízhálózat felújításon esett át, így ezek korszerű állapotban vannak.

A házhoz kapcsolódik egy 22 m2-es tárolóhelyiség, amely átalakítással könnyen további 1?2 szobává alakítható, így az ingatlan bővíthető az új tulajdonos igényei szerint.

A telek végében természetes tufa fal található, amelyben egy kisebb pince került kialakításra. A pince felett egy panorámás kis terasz helyezkedik el, amely kiválóan alkalmas bográcsozásra, pihenésre.

Az ingatlan ideális választás:

- Állandó lakhatásra.
- Nyaralónak vagy hétvégi háznak

Bővíthető, továbbfejleszthető ingatlant keresőknek.

Természetközeli környezetet kedvelőknek.

További információért vagy megtekintés egyeztetéséhez várom megkeresését.

OTP Banki hátterünknek köszönhetően finanszírozási igényekben (pl. Otthon Start Program, Babaváró, Falusi CSOK, CSOK Plusz, Lakáshitel, Személyi kölcsön stb.), illetve biztosítások tekintetében is díjmentesen, soron kívüli ügyintézéssel segítem ügyfeleim! Referenciaszám: M319825

Referencia szám: M319825-ITV
További adatok
Telekterület: 870 m2
Kert mérete: -
Erkély mérete: -
Felszereltség: -
Parkolás: lakáshoz van kültéri parkoló
Kilátás: -
Egyéb extrák:  
Hirdető adatai
Hirdető neve: otpip.hu - Eger Kertész utca 25 - OTP Ingatlanpont Iroda
Kapcsolattartó: Juhász Anita
Hirdető telefonszáma: +36709070700
Honlap: -
 
Üzenetet küldhet a hirdetőnek, árajánlatot tehet az ingatlanra:
Az Ön neve:
Az Ön e-mail címe:
Üzenet: