Ingatlan Televízió
Ingatlan Televízió
további hirdetések
adatlap bezárása

Budapest, XV.kerület 
Rákospalota 

Hivatkozási szám: 5859825
Ingatlan adatai
Irányár: 199 000 000 Ft
Típus: ház
Kategória: eladó
Alapterület: 160 m2
Fűtés: gáz (cirko)
Állapota: új
Szobák száma: 5
Építés éve: 2014
Szintek száma: -
Részletes leírás
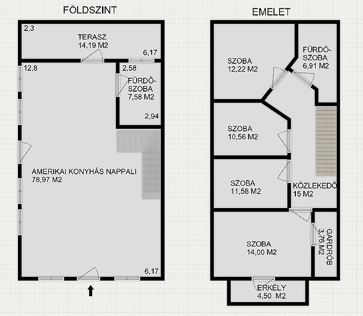
XV. KERÜLETBEN: RÁKOSPALOTÁN, CSALÁDI HÁZAS RÉSZEN, ELADÓ EGY 2014- BEN ÉPÜLT, ELŐKERTES, 180 M2, ÚJSZERŰ, 5 SZOBÁS, DUPLAKOMFORTOS CSALÁDI HÁZ, 360 M2 TELEKKEL, TÁGAS TERASSZAL, GARÁZZSAL.

A HÁZ JELLEMZŐI:

Az ingatlan belső 2 szintes, a földszinten egy hatalmas amerikai konyhás nappali és fürdőszoba található, az emeleten 4 szoba (egyik szoba gardróbbal is rendelkezik), fürdőszoba, közlekedő és erkély került kialakításra. A szobák laminált parkettásak, a többi helyiség járólapos.

2020-ban teljes körű, esztétikai felújításon esett át a ház, a konyhai gépesítés-, a fürdőszoba burkolatok is cserélve lettek, és a teljes ház ki lett festve.

A fűtést padlófűtés és kombi cirkó biztosítja, és hűtő-fűtő klíma is rendelkezésre áll. A kertre néző teraszt a nappaliból lehet megközelíteni. Tartozik a házhoz garázs, fedett autóbeálló és a telek végében kerti sütögető hely is kialakításre került.

FINANSZÍROZÁS:

Az ingatlan TEHERMENTES, hitelre is megvásárolható. Bankfüggetlen tanácsadóink, az ország összes pénzintézete közül gyorsan és gördülékenyen találja meg az Önnek legmegfelelőbb konstrukciót, egyedi kedvezményekkel. A hitel közvetítés díjmentes.



A hirdetésben szereplő adatok tájékoztató jellegűek.

Várjuk hívását munkanapokon 09.00- 19:00 óra között.

Amennyiben eladná saját ingatlanát, több mint 10 éve működő, kifejezetten a kerületre szakosodott irodánktól, INGYENES ÉRTÉKBECSLÉST kérhet.
További adatok
Telekterület: 360 m2
Kert mérete: 360 m2
Erkély mérete: -
Felszereltség: -
Parkolás: -
Kilátás: kertre néző
Egyéb extrák:  
Hirdető adatai
Hirdető neve: MPD Hungary Kft.
Kapcsolattartó: Imobiliare Kft.
Hirdető telefonszáma: +3612305153
Honlap: -
 
Üzenetet küldhet a hirdetőnek, árajánlatot tehet az ingatlanra:
Az Ön neve:
Az Ön e-mail címe:
Üzenet: