Ingatlan Televízió
Ingatlan Televízió
további hirdetések
adatlap bezárása

Érd 
 

Hivatkozási szám: 5859687
Ingatlan adatai
Irányár: 226 000 000 Ft
Típus: ház
Kategória: eladó
Alapterület: 187 m2
Fűtés: -
Állapota: új
Szobák száma: 4
Építés éve: 2025
Szintek száma: -
Részletes leírás
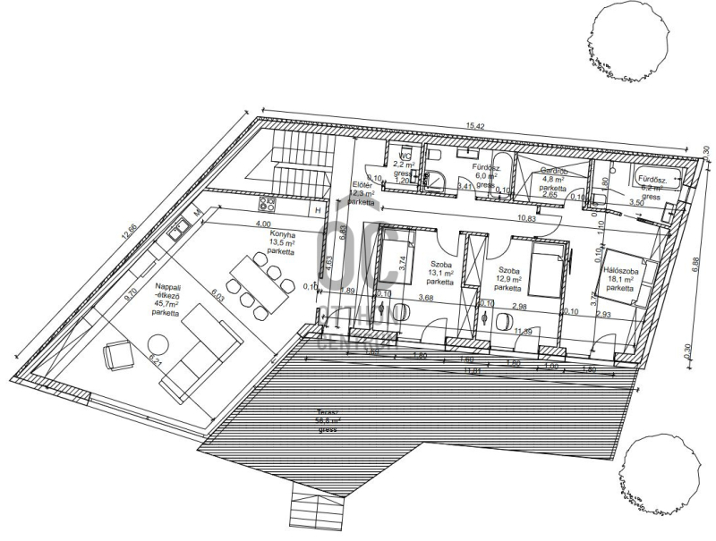
Érd-Parkváros csendes utcájában új építésű, nettó 187 m2-es, amerikai konyhás nappalival, 3 hálószobával, 2 fürdőszobával, kiszolgáló helyiségekkel, garázzsal, nagy terasszal ikerház eladó!
Az épület formavilága rendkívül impozáns. Egyedi módon, szinteltolással kapcsolódik egymáshoz a két ház. Az ingatlant átgondolt, praktikus alaprajz, magas minőségű kivitelezés, modern, minden igényt kielégítő felszereltség jellemzi. Elhelyezkedése rendkívül csendes, zöld. Egy zsák utca végén, természetvédelmi terület szélén van, ami intimmé teszi. A hatalmas nyílászáróknak köszönhetően a ház világos, napos, szép kilátás van a környező erdős hegyekre. Az 57 m2-es terasz és a hozzákapcsolódó saját kertrész tökéletes helyet biztosít a kellemes pihenésre, kikapcsolódásra.

A 2 épületnek csak a garázs szinten van közös fala. A házak 30 cm vastag Porotherm falazóelemekből épültek, 20 cm Dryvit rendszerű hőszigeteléssel.
A fűtést Daikin hőszivattyús rendszer biztosítja, mennyezeti hűtés-fűtéssel és padlófűtéssel.
A nyílászárók antracit színűek, fa, 3 rétegű, bukó-nyíló ablakok és nagy méretű toló teraszajtó, rejtett tokozással, elektromos redőnnyel, illetve zsalúziával.
A burkolatok, szaniterek és belső ajtók kiemelkedő minőségben, az átlagnál magasabb áron választhatók.

Az egyéb extra felszereltséget is tartalmazó részletes műszaki tartalmat komoly érdeklődés esetén rendelkezésére bocsájtjuk.
A beruházó cég megbízható, és számos referencia munkával rendelkezik.

Az utca rendezett, új építésű házakkal. Pár perc alatt elérhető minden szolgáltatás, iskola, óvoda, tömegközlekedés, bevásárlási lehetőség.

Várható átadás: 2026. II. negyedév

További információkkal kapcsolatban kérem hívjon bizalommal!
További adatok
Telekterület: 300 m2
Kert mérete: 300 m2
Erkély mérete: 57 m2
Felszereltség: -
Parkolás: -
Kilátás: -
Egyéb extrák:  
Hirdető adatai
Hirdető neve: Otthon Centrum
Kapcsolattartó: Lukácsi Mária
Hirdető telefonszáma: +36 70 461 9686
Honlap: -
 
Üzenetet küldhet a hirdetőnek, árajánlatot tehet az ingatlanra:
Az Ön neve:
Az Ön e-mail címe:
Üzenet: