Ingatlan Televízió
Ingatlan Televízió
további hirdetések
adatlap bezárása

Gárdony 
Móricz Zsigmond utca 

Hivatkozási szám: 5859069
Ingatlan adatai
Irányár: 168 000 000 Ft
Típus: ház
Kategória: eladó
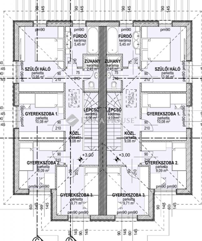
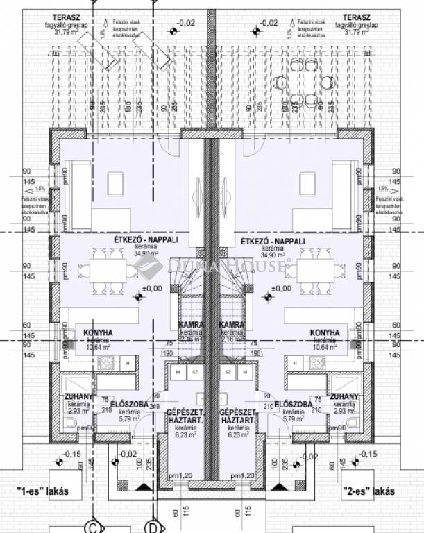
Alapterület: 161 m2
Fűtés: -
Állapota: új
Szobák száma: 5
Építés éve: 2025
Szintek száma: 1
Részletes leírás
Eladó újépítésű Ikerházfél Gárdony frekventált, mégis nyugodt részén!

Eladásra kínálok egy épülőfélben lévő, minden igényt kielégítő ikerházfelet!

Ritka kincs a piacon: a földszinti tágas amerikai konyhás nappali mellett további 4 teljes értékű hálószoba és 3 fürdőszoba biztosítja a teljes kényelmet!
A szobákban és a nappaliban hűtő-fűtő és páramentesítő klíma
Hőszivattyús padló hűtés-fűtés
A lakás műszaki tartalmáról:
- Viablokk falazat, 10 cm Dryvit szigetelés, Hofstadter 3 rétegű nyílászárók, motoros redőnyökkel, egyedi kő burkolat a homlokzaton, párkányokon, Monolit vasbetonfödém
-Térkövezett járda, terasz és kocsibeálló

Zöldenergia és A++ besorolás - ALACSONY rezsiköltség
A ház hőszivattyús fűtésrendszerrel és kiváló szigeteléssel épül,
A ház esetében nem standard burkolatok közül válogathat: leendő tulajdonosként kiemelt lehetőséget kap prémium márvány, gránit és felső kategóriás burkolatok kiválasztására!

A ház elhelyezkedése kiváló: közel a parthoz és a központi infrastruktúrához, mégis csendes környezetben.

Bár az ingatlan paramétereiből adódóan állami támogatások (CSOK, stb.) nem vehetők igénybe, ez a ház azoknak szól, akik nem kompromisszumokat keresnek, hanem értéket.
Ideális készpénzes vásárlóknak vagy piaci hitellel rendelkezőknek!
Várható átadás: 2026

Amennyiben az ingatlan felkeltette érdeklődését, kérem keressen bizalommal!
További adatok
Telekterület: 353 m2
Kert mérete: -
Erkély mérete: 32 m2
Felszereltség: -
Parkolás: lakáshoz van kültéri parkoló
Kilátás: -
Egyéb extrák:  
Hirdető adatai
Hirdető neve: dh.hu - Hidegkút
Kapcsolattartó: Venczel Bea
Hirdető telefonszáma: +36704545765
Honlap: -
 
Üzenetet küldhet a hirdetőnek, árajánlatot tehet az ingatlanra:
Az Ön neve:
Az Ön e-mail címe:
Üzenet: