Ingatlan Televízió
Ingatlan Televízió
további hirdetések
adatlap bezárása

Sobor 
 

Hivatkozási szám: 5858730
Ingatlan adatai
Irányár: 129 900 000 Ft
Típus: ház
Kategória: eladó
Alapterület: 97 m2
Fűtés: elektromos
Állapota: felújított
Szobák száma: 3
Építés éve: 2020
Szintek száma: 1
Részletes leírás
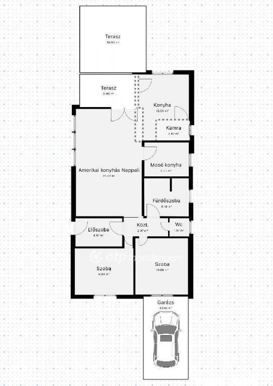
Eladásra kínálunk egy Exkluzív, 2020-ban épült új, könnyű szerkezetes családi házat - csodás birtokkal magakörül! Magas minőségű otthon várja új tulajdonosát Sobor településen, Magyarországon, Győr-Moson-Sopron Vármegyében. Ez a páratlanul stílusos és modern ingatlan minden igényt kielégít és az elegancia és a kényelem tökéletes harmóniáját nyújtja. Fedezze fel a prémium kivitelezés és kifinomultság magasztos érzését ebben a 97 négyzetméter nagyságú + terasz + autóbeálló - ingatlanban, mely ötvözi a prémium minőségű anyagokat és a legkorszerűbb technológiát. Az épület számos kiemelkedő jellemzővel rendelkezik, hogy biztosítsa a tökéletes otthoni élményt. A külső falakon 15 cm vastag hőszigetelés biztosítja a hatékony hőtartást, míg a zárófödémben 30 cm vastag hőszigetelés gondoskodik a tökéletes hangszigetelésről. A válaszfalakban pedig 10 cm vastag, kiváló minőségű szigetelést találunk. A külső hőszigetelés 15 cm vastag grafitos Dryvit rendszerű hőszigetelő vakolatrendszerrel van ellátva, amely hosszú távú védelmet nyújt a környezeti hatásokkal szemben. A tetőfedését pedig minőségi IKO Cambridge típusú, térhatású bitumenes zsindelyek alkotják, melyek nemcsak tartósságot biztosítanak, hanem esztétikailag is lenyűgöző látványt nyújtanak. A fűtést és a melegvizet Bosch Tronic 3500 elektromos kazán szolgáltatja, amely kiváló hatékonysággal működik, és megbízható hőellátást biztosít az egész épületben. A padlófűtés minden helyiségben megtalálható, így a kellemes hőmérséklet mindig körülveszi önöket. A szobákban pedig elegáns laminált padló burkolatot találunk, míg a többi helyiségben igényes járólapot. A házon található napelem rendszer, melyről gyakorlatilag szinte költség nélkül üzemel. Energetikai besorolása AA+, mely kiemelkedő a mai újépítésű otthonok között is. 3x25 amper biztosítja egy hatalmas, külön bontott kismegszakítóval a gondtalan működést. A kapu elektromosan, távolról is nyitható. Az otthonba lépve az előtér fog bennünket, amelyből a közlekedőbe juthatunk. Innen jobbra található két külön nyíló szoba, melyek 10-11 négyzetméteres mérettel büszkélkednek. A szobák szemben helyezkedik el a tágas, 2 személyes épített zuhannyal ellátott fürdőszoba, melyben WC is helyet kapott, mellette pedig teljesen külön helyiségben található még egy WC. A közlekedő elején balra található a lenyűgöző 27 négyzetméteres nappali, mely egy légtérben kapcsolódik az étkezővel és a 9 négyzetméteres konyhával. A konyhából pedig egy 2,4 négyzetméteres éléskamra nyílik, mely mögött megtalálható a nappaliból nyíló 4,9 négyzetméteres háztartási helyiség, melyben található a kazán, mosógép, szárítógép, emellett kényelmesen elhelyezheti a mindennapi tárgyait. Telek: A teljes telekméret 8936 négyzetméter. Az ingatlanhoz tartozik egy lenyűgöző fedett terasz, amely tökéletes helyszínt biztosít a kikapcsolódásra és a vendégek fogadására, valamint egy 2025-ben épült fedett épület rész, melyet jakuzzi létesítésére építettek, külön figyelve a kényelemre, ugyanis a házból közvetlen kilépve szemben található. A kert pedig csodálatos lehetőségeket nyújt a szabadban való pihenésre és szórakozásra. Minden része tökéletesen megtervezett, varázslatos növényekkel telepített. Az év egész időszakában éke a háznak. Hátul pedig a veteményesek szerelmesei is megtalálják számításaikat, ugyanis egy új magas ágyás biztosítja a friss zöldségeket a mindennapokhoz. Utcafrontról befelé indulva található egy kényelmes, fedett kocsibeálló - elektromos garázsnyitóval, hogy autóját mindig biztonságban tudhassa. Megtalálható ezen kívül egy nyári konyha, amihez barkács műhely is tartozik. Ez az exkluzív ingatlan egyedülálló lehetőséget kínál a luxus és a minőség szerelmeseinek. Ne hagyja ki ezt a ritka alkalmat, és lépjen be az álmai otthonába. Vegye fel velünk a kapcsolatot még ma, hogy személyesen megtapasztalhassa ezt a lenyűgöző ingatlant és felfedezhesse a maga számára tartogatott kifinomultságot és kényelmet. Az ingatlan hitelezhető, tehermentes. Elhelyezkedés szempontjából tökéletes környezetben található, távol minden zajtól, kifejezetten ajánlom a természet szerelmeseinek. A házból kilépve 1-2 perc sétára található a Rába folyó, mely fürdési, túrázási, horgászási lehetőséget is biztosít, emellett a vadászati területek is remek adottságokkal bírnak. Elhelyezkedés szempontjából Győr városa 31 km-re található, emellett Pápa városa 27 km-re, munkalehetőség mindegyikben széleskörű, tömegközlekedéssel is megoldott. OTP Ingatlanpont teljes körű ügyintézéssel áll az eladók és a vevők rendelkezésére. A kínálatunkból választott ingatlan finanszírozásához kedvezményes hitelkonstrukciót kínálunk. Az adásvételi szerződés megkötéséhez igény szerint megbízható ügyvédi közreműködést biztosítunk, és segítséget nyújtunk az adásvételhez kapcsolódó ügyek intézéséhez is. Az ingatlanról készült alaprajz, illetve fényképfelvételek az Otp ingatlanpont szellemi tulajdonát képezik.
Érdeklődni.: Ifj. Győrffy Tamás - 06 70 771 0065

Referencia szám: M319453-ITV
További adatok
Telekterület: 8 936 m2
Kert mérete: -
Erkély mérete: -
Felszereltség: -
Parkolás: garázs
Kilátás: -
Egyéb extrák:  
Hirdető adatai
Hirdető neve: otpip.hu - Pápa Eötvös utca 16 - OTP Ingatlanpont Iroda
Kapcsolattartó: Győrffy Tamás
Hirdető telefonszáma: +36707710065
Honlap: -
 
Üzenetet küldhet a hirdetőnek, árajánlatot tehet az ingatlanra:
Az Ön neve:
Az Ön e-mail címe:
Üzenet: