Ingatlan Televízió
Ingatlan Televízió
további hirdetések
adatlap bezárása

Budapest, XII.kerület 
 

Hivatkozási szám: 5858377
Ingatlan adatai
Irányár: 450 000 000 Ft
Típus: ház
Kategória: eladó
Alapterület: 365 m2
Fűtés: gáz (cirko)
Állapota: -
Szobák száma: 8
Építés éve: 1989
Szintek száma: -
Részletes leírás
ERDŐVEL HATÁROS INTIMITÁS ÉS TEREK – EGYEDÜLÁLLÓ CSALÁDI HÁZ CSILLEBÉRCEN!

Eladó a XII. kerület egyik legkülönlegesebb pontján, Csillebércen, egy 1514 m²-es telken fekvő, 365 m²-es, 4 szintes, 8 szobás családi ház, amely tökéletes választás nagycsaládosoknak, kétgenerációs otthonnak vagy akár prémium befektetésnek is.
Az ingatlan legnagyobb értékei:
A telek közvetlenül erdővel határos, így garantált a teljes intim szféra, nyugalom és zöld környezet
Nincs szomszéd, csak madárcsicsergés és természet
Gondozott, gyönyörű kert, különleges fákkal, virágokkal – igazi kertimádóknak!

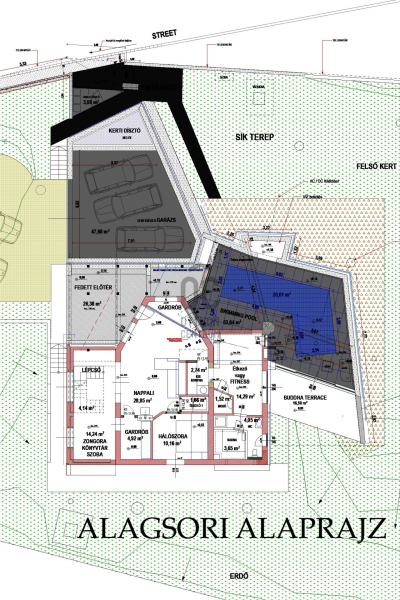
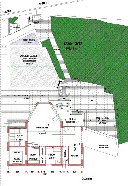
A ház belső elrendezése:
Földszint: amerikai konyhás tágas nappali, kamra, szülői master bedroom
Emelet: 4 külön nyíló szoba, nagy fürdőszoba
Alsó szint: wellness részleg beltéri medencével, szaunával, jakuzzival – akár külön lakrész is kialakítható
Pince szint: 3 fűtött tárolóhelyiség – ideális irodának, műhelynek, hobbiszobának

Főbb paraméterek:
Telek: 1514 m²
Ház: 365 m²
8 szoba, 3 fürdőszoba
Wellness részleg (medence, szauna, jakuzzi)
57 m²-es terasz – tökéletes családi reggelikhez vagy esti borozáshoz
Padlófűtéses gáz cirkó rendszer
D-i tájolás, napfényes, világos terek

Ritka lehetőség a XII. kerületben: ez az egyetlen eladó családi ház, amely ilyen méretű telekkel és erdőkapcsolattal rendelkezik!

Ez az otthon nem csupán egy ingatlan, hanem egy életstílus. Ha fontos a tér, a természet közelsége és a privát nyugalom, ne hagyd ki ezt a lehetőséget!

Álomotthon vár Önre – kérjen időpontot még ma!
További adatok
Telekterület: 1 514 m2
Kert mérete: 1 514 m2
Erkély mérete: 58 m2
Felszereltség: -
Parkolás: -
Kilátás: -
Egyéb extrák:  
Hirdető adatai
Hirdető neve: Otthon Centrum
Kapcsolattartó: Szántai Andrea
Hirdető telefonszáma: +36 70 388 5391
Honlap: -
 
Üzenetet küldhet a hirdetőnek, árajánlatot tehet az ingatlanra:
Az Ön neve:
Az Ön e-mail címe:
Üzenet: