Ingatlan Televízió
Ingatlan Televízió
további hirdetések
adatlap bezárása

Cserépfalu 
 

Hivatkozási szám: 5857915
Ingatlan adatai
Irányár: 58 000 000 Ft
Típus: ház
Kategória: eladó
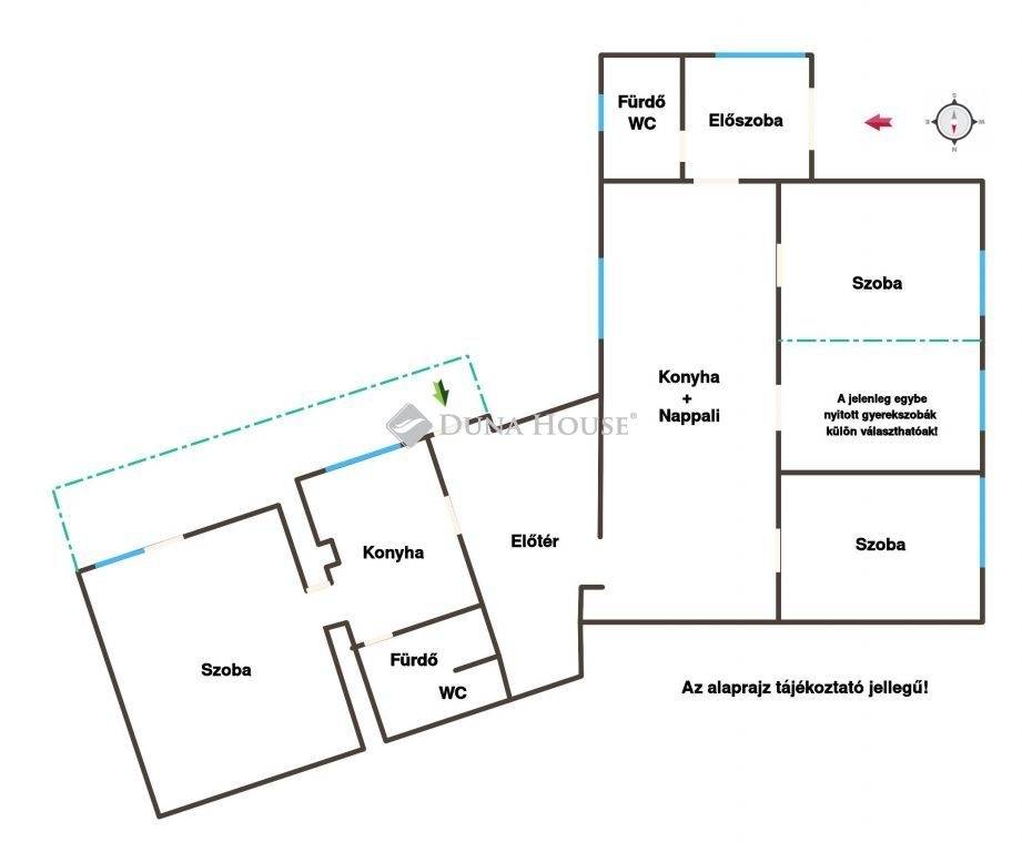
Alapterület: 143 m2
Fűtés: gáz
Állapota: felújított
Szobák száma: 4
Építés éve: 1978
Szintek száma: 1
Részletes leírás
Eladó családi ház Cserépfalu központjában külön bejáratú, apartmanként is hasznosítható lakrésszel

Cserépfalu frekventált, mégis nyugodt részén kínálunk megvételre egy igényesen felújított, otthonos hangulatú családi házat, amelyhez egy külön bejáratú, teraszos lakrész is tartozik. Az ingatlan kialakítása lehetővé teszi a kényelmes együttélést, miközben a külön lakrész önálló funkciót is betölthet.

A belső terek világosak, barátságosak, az elrendezés praktikus, a műszaki tartalom korszerű, így az ingatlan azonnal költözhető vagy hasznosítható.



Főbb adatok és műszaki jellemzők
Telek területe: 1396 m²
Lakóterület: kb. 143 m²
Felújítás éve: 2021
Falazat: bogácsi kő
Nyílászárók: 2 rétegű műanyag ablakok
Tető: betoncserép, a lécezés cseréje megtörtént
Homlokzati szigetelés: 10-15 cm
Lábazati szigetelés: 5-10 cm
Villamoshálózat teljes cseréje megtörtént
Födém szigetelése 2026-os kivitelezésű: 20 cm-es üveggyapot



Fűtés és komfort
Padlófűtés és radiátoros hőleadás kombinációja
5,3 kW-os inverteres klíma
Fatüzelésű kályha, mint alternatív fűtési lehetőség
Két felújított fürdőszoba
A jelenlegi nagyobb hálószoba két külön helyiséggé alakítható



Belső burkolatok és esztétika
Szobákban laminált padló
Közlekedőkben és vizes helyiségekben hidegburkolat
Letisztult, világos belső terek, harmonikus színvilág



Hasznosítási lehetőségek
A külön bejáratú, teraszos lakrész önálló lakásként vagy apartmanként is működtethető
Ideális vendégek fogadására vagy turisztikai kiadásra
Kiváló megoldás többgenerációs családoknak
Alkalmas csendes otthoni munkavégzésre, külön dolgozótérként
Lehetőséget biztosít nyugodt elvonulásra, pihenésre, a fő lakótértől elkülönítve



Összegzés

Ez az ingatlan harmonikus egyensúlyt kínál otthon és funkcionalitás között: nagy telek, felújított műszaki tartalom, valamint többféle hasznosítási lehetőség Cserépfalu központjában.

Hívjon bizalommal, és tekintse meg személyesen ezt a sokoldalúan használható ingatlant!
Credipass-bankfüggetlen hitelügyintézés
További információ : Mizser Andrea, telefon: +36 20 498 2113
További adatok
Telekterület: 1 396 m2
Kert mérete: -
Erkély mérete: -
Felszereltség: -
Parkolás: -
Kilátás: -
Egyéb extrák:  
Hirdető adatai
Hirdető neve: dh.hu - Miskolc, Centrum
Kapcsolattartó: Mizser Andrea
Hirdető telefonszáma: +36204982113
Honlap: -
 
Üzenetet küldhet a hirdetőnek, árajánlatot tehet az ingatlanra:
Az Ön neve:
Az Ön e-mail címe:
Üzenet: