Ingatlan Televízió
Ingatlan Televízió
további hirdetések
adatlap bezárása

Veresegyház 
 

Hivatkozási szám: 5857821
Ingatlan adatai
Irányár: 121 000 000 Ft
Típus: ház
Kategória: eladó
Alapterület: 115 m2
Fűtés: -
Állapota: új
Szobák száma: 3+1
Építés éve: 2026
Szintek száma: 1
Részletes leírás
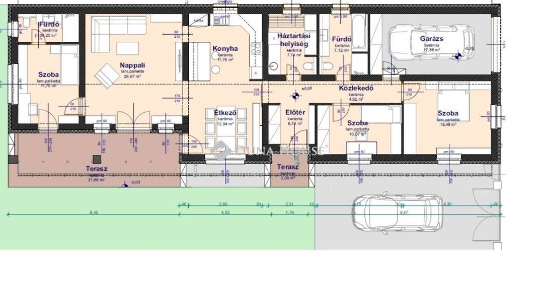
Újépítésű nappali + 3 szobás, teraszos családi ház Veresegyházon!

Megvételre kínálok Veresegyház központjától karnyújtásnyira, a Fővég városrészben egy új építésű, nettó 115 nm-es, amerikai konyhás nappali + 3 szobás, dupla komfortos családi házat, gépkocsi beállóval egy 698 nm-es telken.

A lakótér 115 nm + 29 nm és 3 nm terasz, + gépkocsi beálló.

A családi élet színterét egy 51 nm-es amerikai konyhás nappali étkező biztosítja, privátszférát mindenki megtalálhatja a 3 külön nyíló hálószobában, a család kényelmét fokozza a 2 fürdőszoba, továbbá kamra, előtér, közlekedő is megtalálható a házban.

Az ingatlan energiahatékonyságát a korszerű építőanyagok és technológia biztosítja. A házhoz Concept 8KW-os hőszivattyús rendszer tartozik, mely a fűtést és a melegvizet biztosítja, beépített melegvíz tárolóval. A hőleadás padlófűtéssel történik. A rendszerhez 1db fan-coil vagy 1db inverteres klímaberendezés (választható) kerül beszerelésre a nappaliban.

Az átadás várható ideje 2026. június. A családi ház építése szerződéskötés után kezdődik.

Kérésre teljes műszaki tartalmat, alaprajzot szívesen küldök!
Igény esetén garázzsal is kérhető, a tervrajzok még módosíthatók, 4 akár 5 szobás kivitelezés is megoldható.

Várom hívását!

Az energetikai tanúsítvány készítése folyamatban van, amint rendelkezésre áll, úgy azzal a hirdetés frissítésre kerül.


Érdeklődni: Szaniszló Tímea
+36 30/599-5073
További adatok
Telekterület: 698 m2
Kert mérete: -
Erkély mérete: 32 m2
Felszereltség: -
Parkolás: garázs
Kilátás: -
Egyéb extrák:  
Hirdető adatai
Hirdető neve: dh.hu - Gödöllő
Kapcsolattartó: Szaniszló Tímea
Hirdető telefonszáma: +36305995073
Honlap: -
 
Üzenetet küldhet a hirdetőnek, árajánlatot tehet az ingatlanra:
Az Ön neve:
Az Ön e-mail címe:
Üzenet: