Ingatlan Televízió
Ingatlan Televízió
további hirdetések
adatlap bezárása

Egyek 
 

Hivatkozási szám: 5857670
Ingatlan adatai
Irányár: 58 000 000 Ft
Típus: ház
Kategória: eladó
Alapterület: 193 m2
Fűtés: gáz (cirko)
Állapota: felújított
Szobák száma: 5
Építés éve: 2015
Szintek száma: 1
Részletes leírás
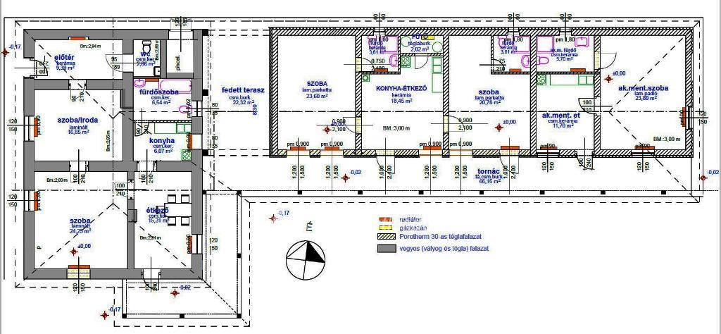
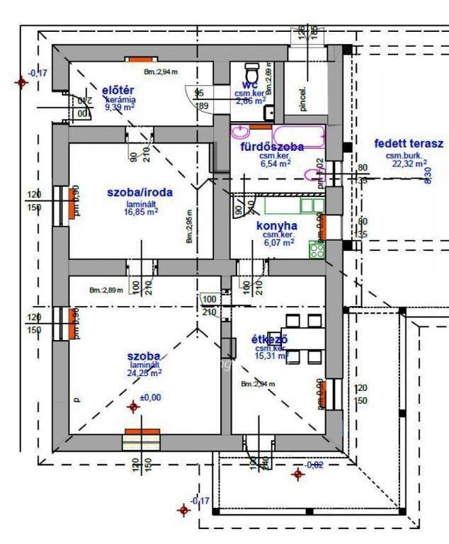
A HAJDÚ-BIHAR MEGYEI EGYEKEN, A TELEPÜLÉSKÖZPONTBAN ELADÓ EGY KITŰNŐ ÁLLAPOTBAN LÉVŐ, 193,34 M2 HASZNOS ALAPTERÜLETŰ, 4 EGYSÉGES, 5 SZOBÁS, ÖSSZKOMFORTOS, ÖSSZKÖZMŰVES VENDÉGHÁZ, NAPELEMES ENERGIAELLÁTÁSSAL ÉS NAPKOLLEKTORRAL, 2806 M2-ES TELKEN, A TISZA FOLYÓTÓL 6 KM-RE, 15 KM-RE A TISZA-TÓTÓL (TISZAFÜRED)!!! A telken két épületből álló épületegyüttes található, tornáccal és fedett terasszal összekötve!!! Az egyik épület (régi) egy kb. 1945-ben épült paplakás volt, mely 2015-ben teljes körű külső-belső felújításon esett át (a tető is új), mögötte egy 2015-ben épült teljesen új építésű épület (új). A régi épület falazata vályog és tömör tégla vegyesen, az új épület pedig Porotherm 30-as téglából épült, 10 cm hőszigeteléssel, nemes vakolattal, födém fagerendás mindkét épületben, az újban 25 cm gyapot szigetelés, a régi épületben is 10 cm gyapot van a régi saralt fafödémen. A tetőn 10 kW-os napelem (33 db) és 2 napkollektor!!! Az épületegyüttes apartmanként működött évekig, melyben összesen négy önálló, külön bejáratos vendégszobaegység van kialakítva, a legutolsó apartman akadálymentes, de az egységek egy része össze is nyitható, azaz nagyobb családok, baráti társaságok több egységet egyben is használhatnak (lásd alaprajz)!!!
Az ingatlannak egy tulajdonosa van (magánszemély), első épület lakóházként is használható (így is van nyilvántartva), de teljes épületegyüttes is alkalmas többgenerációs családi házként, saját használatú üdülőként, vagy elhelyezkedése miatt üzleti célra is!!!
Udvaron fúrt kút és ásott kút is, kerti főzőhely, kerti tároló pavilon, fedett terasz, tornác, gyümölcsfák: 4 szilva, 2 füge, 4 birskörte, 2 cseresznye, 3 alma, 1 diófa, 2 őszibarack, málna.
Egyeken a falusi CSOK igénybe vehető, a ház is alkalmas rá, arra is ajánljuk, melynek teljes körű ügyintézését és az esetleges banki finanszírozás előkészítését díjmentesen vállaljuk!!!
Egyek egy fejlődő nagyközség, megfelelő infrastruktúrával, munkahelyekkel rendelkezik, a település közel van a Tiszához (külterülettel határos), 10 km-re a nagyobb, városi infrastruktúrával rendelkező Tiszafüred, ahol szabad-strand, kikötők, gyógyfürdő, nagy áruházak (Tesco, Lidl, Spar, Penny), kerékpároscentrum stb. is megtalálhatók. Egyekhez közel van a 33-as sz. főút is (3 km-re), Debrecen 62 km-re, M3-as autópálya 37 km-re (M3 Outlet Center ugyanitt).
Az ingatlant jó adottsága, nagysága, elhelyezkedése miatt elsősorban vállalkozások, befektetők figyelmébe ajánljuk!!!
Az ár tartalmazza a teljes bútorzatot, berendezést!!!
Helyiségek: régi épület: 80,07 m2, köztük: 22,32 m2 fedett terasz, új épület: 113,27 m2, tornác 66,15 m2. 1. épület: 2 szoba, konyha, étkező, fürdő+WC, plusz külön WC, előtér. 2. épület: 3 szoba (előtér-konyha, konyha-étkező, 3 zuhanyzó-WC egyben. A ház alatt egy 25,3 m2-es pince!!!
Fűtés: 2 gázkazán, külön mindkét házban.
Melegvíz: melegvíz kombi gázkazánról és napkollektorról is.
Telekterület: 2806 m2.
Közművek: víz, villany, gáz, szennyvíz.
Közelben: központi kereskedések, szolgáltatások, intézmények, hivatal, gyógyszertár stb.
Amennyiben hirdetésem felkeltette érdeklődését, keressen bizalommal bármikor (hétvégén is!), lehetőleg a +36 30 299 74 16 telefonszámon, ha nem tudom azonnal felvenni, visszahívom, ha a számát kijelzi. További kérdéseire készséggel válaszolok! A tiszafüredi OTP Ingatlanpont és OTP Pénzügyi Pont teljes körű ügyintézéssel áll az eladók és a vevők rendelkezésére! A kínálatunkból választott ingatlan finanszírozásához kedvezményes hitel- és lízingkonstrukciókat kínálunk. Az adásvételi szerződés megkötéséhez igény szerint megbízható ügyvédi közreműködést biztosítunk, és segítséget nyújtunk az adásvételhez kapcsolódó ügyek intézéséhez, hiteligényléshez (igazolások igénylése, nyomtatványok kitöltése, benyújtása stb.).
Irányár: 58 millió Ft
Referenciaszám: M319830
További adatok
Telekterület: 2 601 m2
Kert mérete: -
Erkély mérete: -
Felszereltség: -
Parkolás: lakáshoz van kültéri parkoló
Kilátás: -
Egyéb extrák:  
Hirdető adatai
Hirdető neve: otpip.hu - Tiszafüred Fő utca 29 - OTP Ingatlanpont Iroda
Kapcsolattartó: Kiss György
Hirdető telefonszáma: +36-30-299-7416
Honlap: -
 
Üzenetet küldhet a hirdetőnek, árajánlatot tehet az ingatlanra:
Az Ön neve:
Az Ön e-mail címe:
Üzenet: