Ingatlan Televízió
Ingatlan Televízió
további hirdetések
adatlap bezárása

Kiskunlacháza 
 

Hivatkozási szám: 5855852
Ingatlan adatai
Irányár: 118 000 000 Ft
Típus: ház
Kategória: eladó
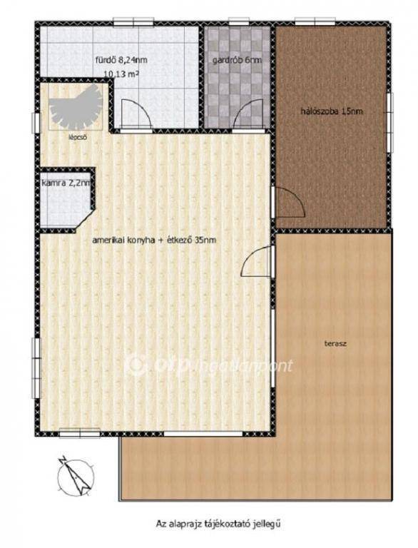
Alapterület: 92 m2
Fűtés: elektromos
Állapota: felújított
Szobák száma: 3+1
Építés éve: 2021
Szintek száma: 2
Részletes leírás
Eladó egy prémium kivitelezésű hétvégi ház!!

Dunától mindössze 60 méterre eladó egy 92 m2-es, modern technológiával épült, thermoblock falazatú, kívül-belül szigetelt, kiemelkedő minőségű, belterületi, hétvégi ház, 575 m2-es, parkosított telken.

A ház különlegességét a látványos vörösfenyő tetőszerkezet, a padlófűtés, a korszerű légkondicionált fűtési rendszer, valamint a beépített kandalló adják. A tágas, 35 m2-es gépesített amerikai konyha, nappali egy légtérben található, ami ideális családi és baráti összejövetelekhez is.

Az ingatlan része továbbá egy 7,5 × 4 méteres fűthető medence, egy impozáns vörösfenyő terasz, valamint rendezett, zöld, parkosított kert. Az ingatlan elektromos kapuval, riasztó rendszerrel ellátott.

Az OTP Bankcsoport teljeskörű ügyintézéssel áll az eladók és a vevők rendelkezésére! A
kínálatunkból választott ingatlan finanszírozásához kedvezményes hitelkonstrukciókat
kínálunk. Az adásvételi szerződés megkötéséhez igény szerint megbízható ügyvédi
közreműködést biztosítunk és segítséget nyújtunk az adásvételhez kapcsolódó ügyek intézéséhez.
M318962

Ár: 118 millió
We can recommend the assistance of a reliable (English speaking) lawyer, if so requested and can also offer help at arranging the administrative matters related to the acquisition. If you wish to send an English language notification of your interest, please send a message thereof indicating your phone number (and/or e-mail address) so we can contact you without language difficulties.

Referencia szám: M318962
További adatok
Telekterület: 588 m2
Kert mérete: -
Erkély mérete: 29 m2
Felszereltség: -
Parkolás: lakáshoz van kültéri parkoló
Kilátás: -
Egyéb extrák:  
Hirdető adatai
Hirdető neve: otpip.hu - Budapest XIII. kerület Pannónia utca 25 - OTP Ingatlanpont Iroda
Kapcsolattartó: Rácz Ildikó Éva
Hirdető telefonszáma: +36-70-393-4956
Honlap: -
 
Üzenetet küldhet a hirdetőnek, árajánlatot tehet az ingatlanra:
Az Ön neve:
Az Ön e-mail címe:
Üzenet: