Ingatlan Televízió
Ingatlan Televízió
további hirdetések
adatlap bezárása

Egyek 
 

Hivatkozási szám: 5855701
Ingatlan adatai
Irányár: 16 500 000 Ft
Típus: ház
Kategória: eladó
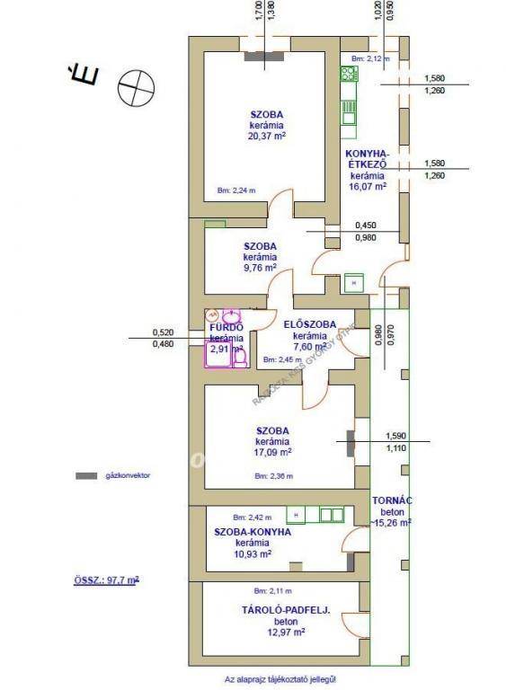
Alapterület: 97 m2
Fűtés: gáz (konvektor)
Állapota: felújított
Szobák száma: 3+1
Építés éve: 1950
Szintek száma: 1
Részletes leírás
A HAJDÚ-BIHAR MEGYEI EGYEKEN, A KÖZPONTHOZ KÖZEL, DE CSENDES UTCÁBAN, KIFEJEZETTEN JÓ KÖRNYÉKEN ELADÓ EGY FOLYAMATOSAN KARBANTARTOTT, JÓ ÁLLAPOTÚ, 97,7 M2-ES, 3+1 SZOBÁS, KOMFORTOS, ÖSSZKÖZMŰVES CSALÁDI HÁZ, A TISZA FOLYÓTÓL KB. 5 KM-RE, 16 KM-RE A TISZA-TÓTÓL!!! A lakóépület kb. 1950-es években épült, falazata vályog és tégla, homlokzata festett, fa ablakokkal, műanyag bejárati ajtókkal, födém saralt fagerendás, tetőn cserépfedés. Az egyik szoba hátul önálló bejáratos, mely nyári konyha is egyben.
Felújítások: 2 műanyag ajtó (2023), konyha újraburkolása (2025), külső-belső festés (2025).
Udvara rendezett, körbekerített, rajta kerti csap, fúrt kút, melléképület.
Az ingatlan tulajdoni lapja tiszta (per-, teher-, és igénymentes).
Egyeken a Falusi CSOK igénybe vehető, a ház alkalmas rá, arra ajánljuk bővítéssel több gyermekre is, melynek teljes körű ügyintézését és az esetleges banki finanszírozás előkészítését díjmentesen vállaljuk!!!
Közelben: 740 m-re a Fő út, 1,2 km-re a központ (kereskedések, szolgáltatások, intézmények, polgármesteri hivatal, gyógyszertár stb.), 2 km-re a vasútállomás.
Helyiségek: 3 szoba, 1 félszoba, konyha, fürdőszoba (WC-vel), előszoba, tároló-padfeljáró, tornác, melléképület.
Telekméret: 716 m2.
Fűtés típusa: gázkonvektorok (3 db).
Melegvíz: villanybojler.
Közművek: víz, villany, gáz, szennyvíz.
Egyek egy fejlődő nagyközség, megfelelő infrastruktúrával, munkahelyekkel rendelkezik, a település közel van a Tiszához (külterülettel határos), 10 km-re a nagyobb, városi infrastruktúrával rendelkező Tiszafüred, ahol szabad-strand, kikötők, gyógyfürdő, nagy áruházak (Tesco, Lidl, Spar, Penny), kerékpároscentrum stb. is megtalálhatók. Egyekhez közel van a 33-as sz. főút is (3 km-re), Debrecen 62 km-re, M3-as autópálya 37 km-re (M3 Outlet Center ugyanitt).
Amennyiben hirdetésem felkeltette érdeklődését, keressen bizalommal bármikor (hétvégén is!), lehetőleg a +36 30 299 74 16 telefonon, ha nem tudom azonnal felvenni, visszahívom, ha a számát kijelzi. További kérdéseire is készséggel válaszolok. A tiszafüredi OTP Ingatlanpont és OTP Pénzügyi Pont teljes körű ügyintézéssel áll az eladók és a vevők rendelkezésére!!! A kínálatunkból választott ingatlan finanszírozásához kedvezményes hitelkonstrukciókat kínálunk! Az adásvételi szerződés megkötéséhez - igény szerint - megbízható ügyvédi közreműködést biztosítunk, és segítséget nyújtunk az adásvételhez kapcsolódó ügyek intézéséhez, hiteligényléshez és Falusi CSOK-hoz teljes körűen (igazolások igénylése, nyomtatványok kitöltése, benyújtása, kérelem gondozása stb.).
Irányár: 16,5 millió Ft
Referenciaszám: M313154
További adatok
Telekterület: 716 m2
Kert mérete: -
Erkély mérete: 15 m2
Felszereltség: -
Parkolás: lakáshoz van kültéri parkoló
Kilátás: -
Egyéb extrák:  
Hirdető adatai
Hirdető neve: otpip.hu - Tiszafüred Fő utca 29 - OTP Ingatlanpont Iroda
Kapcsolattartó: Kiss György
Hirdető telefonszáma: +36-30-299-7416
Honlap: -
 
Üzenetet küldhet a hirdetőnek, árajánlatot tehet az ingatlanra:
Az Ön neve:
Az Ön e-mail címe:
Üzenet: