Ingatlan Televízió
Ingatlan Televízió
további hirdetések
adatlap bezárása

Tiszanána 
 

Hivatkozási szám: 5855648
Ingatlan adatai
Irányár: 12 000 000 Ft
Típus: ház
Kategória: eladó
Alapterület: 83 m2
Fűtés: gáz (konvektor)
Állapota: felújított
Szobák száma: 2+1
Építés éve: 1950
Szintek száma: 1
Részletes leírás
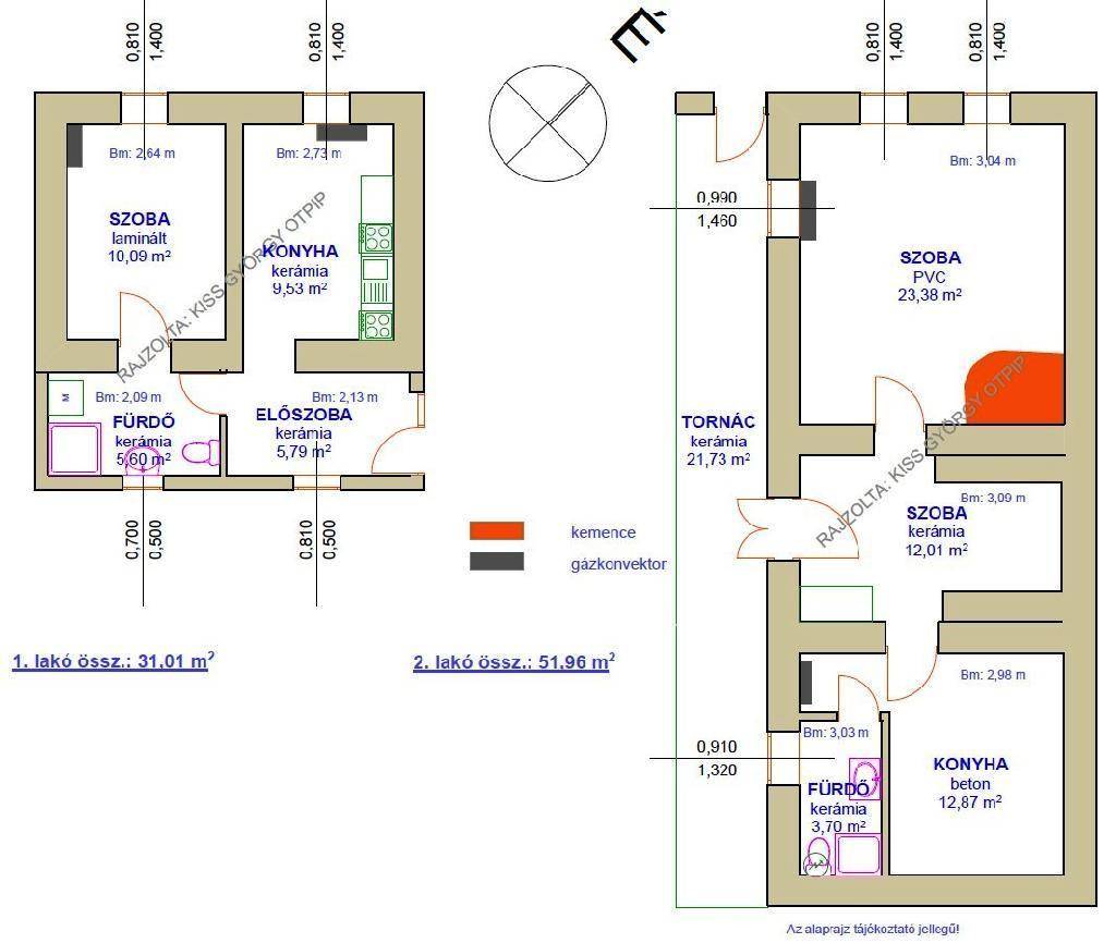
A TISZA-TAVI TISZANÁNÁN A KÖZPONTHOZ KÖZEL, EGY TELKEN KÉT LAKÓHÁZ ELADÓ, ÖSSZESEN 82,97 M2 ALAPTERÜLETTEL, 2+1 SZOBÁVAL, A TISZA-TÓTÓL 6,5 KM-RE!!! Az épületek kb. 1950-es években épültek, falazatuk nagyrészt vályog, részben tégla, födém saralt fa, tetőn cserépfedés, mindkét házban fürdőszoba (WC-vel egyben), a nagyobb ház tornácos, 51,96 m2-es, a kisebb 31,01 m2-es. 2023-ban elvégzett felújítások: ablakok és egyik bejárati ajtó cseréje műanyagra, nagyobb házban új fürdő (a felújítás nem lett befejezve), konyhabútor (még nincs beállítva), utcai kerítés, korábbi években, burkolások, kisebb házban fürdő. Elhelyezkedése miatt a lakóház ingatlanvásárlás szempontjából kitűnő választás, üdülőnek, hétvégi háznak, de akár apartmannak is megfelelő lehet, elsősorban a Tisza-tó szerelmeseinek, horgászoknak, vagy nyugalomra, pihenésre vágyóknak ajánljuk!!!
Az udvara körbekerített, új nagykapuval, rajta ásott kút, kerti csap.
Az ingatlan tulajdoni lapja tiszta (per-, teher, és igénymentes)!!!
Tiszanánán a falusi CSOK is igénybe vehető, a ház akár alkalmas is lehet rá, melynek teljes körű ügyintézését és az esetleges banki finanszírozás előkészítését díjmentesen vállaljuk!!!
Helyiségek: nagyobb ház: 2 szoba, konyha, zuhanyzós fürdő (WC-vel egyben), tornác (51,96 m2), kisebb ház: előszoba, fürdő, szoba, konyha (31,01 m2).
Fűtés: gázkonvektor.
Melegvíz: villanybojler.
Közművek: víz, villany, szennyvíz, gáz; ásott kút.
Telekterület: 1407 m2.
Közelben: központ 750 m-re, a Tisza-tó, strand, csónakkikötő 6,5 km-re.
Tiszanána rendezett, nyugodt kis település, rendelkezik a legfontosabb infrastruktúrával, van általános iskola, óvoda, posta, patika, állatorvosi rendelő, élelmiszer és egyéb üzletek, szolgáltatások, különböző vállalkozások, munkahelyek, vendégházak, strand, kikötő. A községhez tartozik az idegenforgalmi szempontból népszerű üdülőfalu, Dinnyéshát is (6,5 km, a kikötő és szabadstrand is itt). Szomszédos települések: Sarud (népszerű üdülőhely, 6 km), Kisköre (kisváros, 9 km), Abádszalók (kisváros, 23 km, a Tisza túloldalán). Poroszló 16 km-re, ahol szintén élénk az idegenforgalom, az ingatlantól az M3-as autópálya 22 km-re!!! A legközelebbi nagyobb infrastruktúrával rendelkező város Tiszafüred (26 km), ahol a távolsági busz és vonatközlekedés kiváló (pályaudvarok), továbbá: TESCO, LIDL, SPAR, Penny, szakorvosi ellátások, fizioterápiás szolgáltatások, 3 benzinkút, okmányiroda stb.
Amennyiben hirdetésem felkeltette érdeklődését, keressen bizalommal bármikor (hétvégén is!), lehetőleg a +36 30 299 74 16 telefonszámon, ha nem tudom azonnal felvenni, visszahívom, ha a számát kijelzi. További kérdéseire is készséggel válaszolok. A tiszafüredi OTP Ingatlanpont és OTP Pénzügyi Pont teljes körű ügyintézéssel áll az eladók és a vevők rendelkezésére!!! A kínálatunkból választott ingatlan finanszírozásához kedvezményes hitelkonstrukciókat kínálunk! Az adásvételi szerződés megkötéséhez - igény szerint - megbízható ügyvédi közreműködést biztosítunk, és segítséget nyújtunk az adásvételhez kapcsolódó ügyek intézéséhez, hiteligényléshez és CSOK-hoz teljes körűen (igazolások igénylése, nyomtatványok kitöltése, benyújtása, kérelem gondozása stb.).
Irányár: 12 millió Ft
Referenciaszám: M318154
További adatok
Telekterület: 1 407 m2
Kert mérete: -
Erkély mérete: -
Felszereltség: -
Parkolás: lakáshoz van kültéri parkoló
Kilátás: -
Egyéb extrák:  
Hirdető adatai
Hirdető neve: otpip.hu - Tiszafüred Fő utca 29 - OTP Ingatlanpont Iroda
Kapcsolattartó: Kiss György
Hirdető telefonszáma: +36-30-299-7416
Honlap: -
 
Üzenetet küldhet a hirdetőnek, árajánlatot tehet az ingatlanra:
Az Ön neve:
Az Ön e-mail címe:
Üzenet: