Ingatlan Televízió
Ingatlan Televízió
további hirdetések
adatlap bezárása

Tiszaszentimre 
 

Hivatkozási szám: 5855638
Ingatlan adatai
Irányár: 26 500 000 Ft
Típus: ház
Kategória: eladó
Alapterület: 120 m2
Fűtés: gáz (cirko)
Állapota: felújított
Szobák száma: 1+2
Építés éve: 1930
Szintek száma: 1
Részletes leírás
TISZASZENTIMRÉN ELADÓ egy, az 1930-as években épült, 1+2 szobás, 120 m2-es CSALÁDI HÁZ, csendes, nyugodt utcában. Az épület vegyes falazatú, a tető új lemezzel fedett.
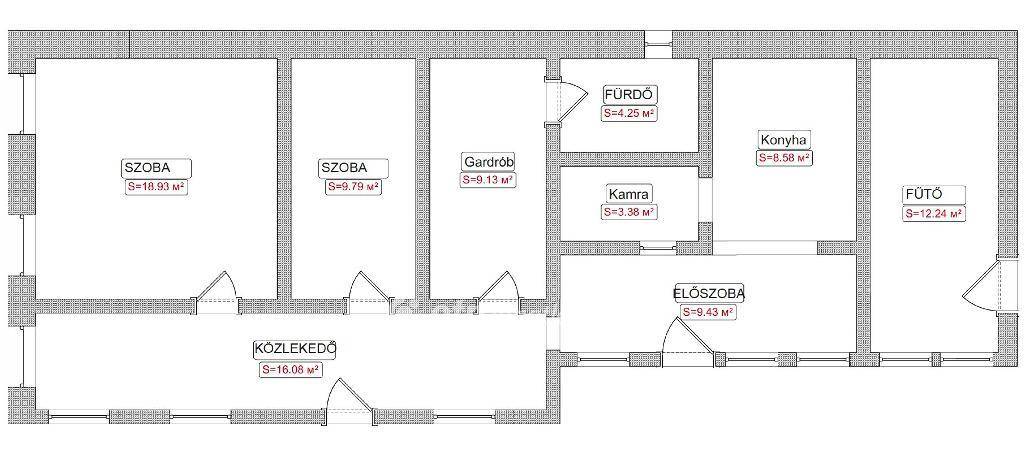
Helyiségek: előszoba, közlekedő, 1+2 szoba, fürdő, konyha, kazánház.
Közművek: villany, víz, gáz, szennyvíz.
Fűtés: gáz-és vegyestüzelésű kazán radiátorokkal, hűtő-fűtő klíma.
Fürdőszobában villanybojler biztosítja a melegvizet. A melléképületben több kisebb helyiség, tároló lett kialakítva, amelyben WC is található.
Az udvaron kényelmes parkolást biztosító kétállásos garázs is van. A telek (1210m2) gyümölcsfákkal rendelkezik, rendezett, könnyen karbantartható. Az ingatlanba lépve azonnal otthonos, meghitt érzés fogadja az embert. A helyiségek harmonikus kialakításúak, barátságos hangulatúak. A beépített konyhabútor nemrégiben lett kialakítva, korszerű, esztétikus és jól használható. Az épület családi házként, apartmanként, üdülőként is használható, saját, vagy befektetési célra egyaránt, ideális hely a csendre, pihenésre és kikapcsolódásra vágyóknak, kényelmes otthon lehet bármely korosztálynak, Falusi CSOK-ra is alkalmas. Tiszaszentimrén a Falusi CSOK is igénybe vehető, melynek teljes körű ügyintézését és az esetleges banki finanszírozás előkészítését díjmentesen vállaljuk!!!
Tiszaszentimre Jász-Nagykun-Szolnok vármegyében található, nyugodt, élhető település, jó alap infrastruktúrával. Megyeszékhely: Szolnok kb. 54 km. Járási központ: Tiszafüred kb. 16 km, Debrecen: kb. 68 km. A település vasúton és autóbusszal is jól megközelíthető. A községben óvoda, általános iskola, orvosi rendelő, posta, boltok, gyógyszertár működik. Tiszafüred és a Tisza-tó közelsége miatt kiváló horgászati, pihenési és turisztikai lehetőség.
Családoknak, idősebb házaspároknak, befektetőknek, falusi CSOK-ra alkalmas ingatlan. Amennyiben hirdetésem felkeltette érdeklődését, keressen bizalommal bármikor (hétvégén is!!!), lehetőleg a +36 20 496 68 10 telefonon, ha nem tudom azonnal felvenni, visszahívom, ha a számát kijelzi. További kérdéseire is készséggel válaszolok. A tiszafüredi OTP Ingatlanpont és OTP Pénzügyi Pont teljes körű ügyintézéssel áll az eladók és a vevők rendelkezésére!!! A kínálatunkból választott ingatlan finanszírozásához kedvezményes hitelkonstrukciókat kínálunk! Az adásvételi szerződés megkötéséhez - igény szerint - megbízható ügyvédi közreműködést biztosítunk, és segítséget nyújtunk az adásvételhez kapcsolódó ügyek intézéséhez, hiteligényléshez és CSOK-hoz teljes körűen (igazolások igénylése, nyomtatványok kitöltése, benyújtása, kérelem gondozása stb.).
Irányár: 26,5 millió Ft
Referenciaszám: M318106

Referencia szám: M318106
További adatok
Telekterület: 1 210 m2
Kert mérete: -
Erkély mérete: -
Felszereltség: -
Parkolás: lakáshoz van kültéri parkoló
Kilátás: -
Egyéb extrák:  
Hirdető adatai
Hirdető neve: otpip.hu - Tiszafüred Fő utca 29 - OTP Ingatlanpont Iroda
Kapcsolattartó: Jónás Irén
Hirdető telefonszáma: +36204966810
Honlap: -
 
Üzenetet küldhet a hirdetőnek, árajánlatot tehet az ingatlanra:
Az Ön neve:
Az Ön e-mail címe:
Üzenet: