Ingatlan Televízió
Ingatlan Televízió
további hirdetések
adatlap bezárása

Szergény 
 

Hivatkozási szám: 5855563
Ingatlan adatai
Irányár: 10 790 000 Ft
Típus: ház
Kategória: eladó
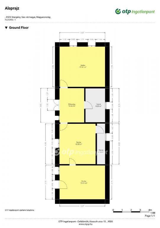
Alapterület: 82 m2
Fűtés: egyéb
Állapota: felújítást igényel
Szobák száma: 3
Építés éve: 1965
Szintek száma: 1
Részletes leírás
Eladásra kínálok Vas vármegyében, Szergény településen, egy kőből épült 82,4 m2 nagyságú, felújítandó családi házat, 2568 m2 területű telken. A település Pápától 23 km-re, Celldömölktől 18 km-re található, a marcalgergelyi Joó-tó és a Sárvári Gyógy és Wellnessfürdő közelében. Az ingatlan 3 szobából, előszobából, valamint két tárolóból áll. A ház felújítása elkezdődött, villany, be van vezetve az épületbe. Téli hideg napokon a ház melegéről fatüzelésű kályhák gondoskodnak. Az udvari rész teljesen rendezett, zárt, körbekerített, ásott kúttal, épületfának vagy tüzelőnek felhasználható akácossal. Ajánlom mindazon érdeklődők figyelmébe, akik több város közelében, de falun nyugodt, családias környezetben keresnek otthont vagy szeretnének nyaralót. Az OTP Ingatlanpont teljes körű ügyintézéssel áll az eladók és a vevők rendelkezésére. A kínálatunkból választott ingatlan finanszírozásához kedvezményes hitelkonstrukciót kínálunk. Az adásvételi szerződés megkötéséhez igény szerint megbízható ügyvédi közreműködést biztosítunk, és segítséget nyújtunk az adásvételhez kapcsolódó ügyek intézéséhez is. Az ingatlanról készült alaprajz, illetve fényképfelvételek az Otp ingatlanpont szellemi tulajdonát képezik. Amennyiben felkeltette érdeklődését az általam kínált ingatlan, ne szalassza el ezt a lehetőséget, vásároljon meg az ingatlant! Hívjon ma!

Az energetikai tanúsítvány készítése folyamatban van, amint rendelkezésre áll, úgy azzal a hirdetés frissítésre kerül.



10790000 Ft
Amennyiben az ingatlan felkeltette érdeklődését, esetleg bármivel kapcsolatban kérdése lenne, keressen Bizalommal! Verrasztó Edina: +36703156380

Referencia szám: M317589-ITV
További adatok
Telekterület: 2 568 m2
Kert mérete: -
Erkély mérete: -
Felszereltség: -
Parkolás: lakáshoz van kültéri parkoló
Kilátás: -
Egyéb extrák:  
Hirdető adatai
Hirdető neve: otpip.hu - Pápa Eötvös utca 16 - OTP Ingatlanpont Iroda
Kapcsolattartó: Verrasztó Edina Irén
Hirdető telefonszáma: +36703156380
Honlap: -
 
Üzenetet küldhet a hirdetőnek, árajánlatot tehet az ingatlanra:
Az Ön neve:
Az Ön e-mail címe:
Üzenet: