Ingatlan Televízió
Ingatlan Televízió
további hirdetések
adatlap bezárása

Hajdúnánás 
 

Hivatkozási szám: 5855343
Ingatlan adatai
Irányár: 235 000 000 Ft
Típus: kereskedelmi/ipari ingatlan
Kategória: eladó
Alapterület: 1 551 m2
Fűtés: -
Állapota: -
Szobák száma: -
Építés éve: 1995
Szintek száma: -
Részletes leírás
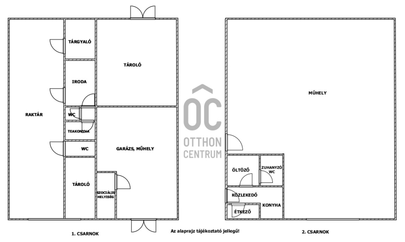
Hajdúnánás ipari övezetében, 3769 m²-es telken kínálunk eladásra két darab, egyenként 775,5 m² alapterületű ipari csarnokot.
A csarnokok külön-külön is megvásárolhatók, így kiváló lehetőséget nyújtanak befektetők és vállalkozások számára egyaránt.

1. számú csarnok:
- Mérete: 16,5 m × 47 m (775,5 m²)
- Belmagasság: 3–5,5 m
- Vasszerkezetű csarnok szendvicspanelekkel
- 10 cm szigetelés az oldalfalakon, mennyezeten és az aljzatbetonban
- Ipari simított betonpadló
- Palatető fedés
- Műanyag nyílászárók, riasztórendszer
- Szekcionált, elektromos ipari kapu
- Helyiségek: iroda, tárgyaló, szociális blokkok, zuhanyzó, teakonyha, raktár, műhely, tároló
- Elektromos hálózat: 3×32 A
- Fűtés: irodában 2 db 3,6 kW-os klíma
- Vízellátás: 65 m mély fúrt kút, házi vízszűrő rendszerrel

2. számú csarnok:
- Mérete: 16,5 m × 47 m (775,5 m²)
- Belmagasság: 3–5,5 m
- Vasszerkezetű csarnok szendvicspanelekkel
- 10 cm szigetelés az oldalfalakon, mennyezeten és az aljzatbetonban
- Ipari simított betonpadló
- Riasztórendszer, műanyag nyílászárók
- Szekcionált, elektromos ipari kapu
- Helyiségek: szociális blokkok, zuhanyzó, teakonyha, műhely
- Tetőfedés: részben palatető, részben lemeztető
- 50 kW-os napelemrendszer az energiaellátás biztosítására
- Elektromos hálózat: 3×80 A
- Vízellátás: 65 m mély fúrt kút, házi vízszűrő rendszerrel

További jellemzők:
- a csarnokok teherautóval teljes körbejárhatók
- teljesen körbekerített terület
- a csarnokok külön bejáratokkal és kapukkal rendelkeznek
- 10 m³-es szennyvízakna tartozik az ingatlanhoz

Udvar: részben betonozott, részben útalappal ellátott.
Az ingatlan számos hasznosítási lehetőséget kínál: ipari vagy mezőgazdasági telephely, raktár, tároló, műhely, üzem kialakítására is ideális.

Amennyiben az ingatlan felkeltette érdeklődését, kérem, keressen bizalommal!
További adatok
Telekterület: -
Kert mérete: -
Erkély mérete: -
Felszereltség: -
Parkolás: -
Kilátás: -
Egyéb extrák:  
Hirdető adatai
Hirdető neve: Otthon Centrum
Kapcsolattartó: Varga Ágnes
Hirdető telefonszáma: +36 70 469 3906
Honlap: -
 
Üzenetet küldhet a hirdetőnek, árajánlatot tehet az ingatlanra:
Az Ön neve:
Az Ön e-mail címe:
Üzenet: