Ingatlan Televízió
Ingatlan Televízió
további hirdetések
adatlap bezárása

Dömsöd 
ÚJ ÉPÍTÉSŰ, Nettó 64nm, 3 szobás, 357nm telekkel 

Hivatkozási szám: 5855012
Ingatlan adatai
Irányár: 48 900 000 Ft
Típus: ház
Kategória: eladó
Alapterület: 64 m2
Fűtés: -
Állapota: új
Szobák száma: 3
Építés éve: -
Szintek száma: -
Részletes leírás
Megvételre kínálok Dömsödön ÚJ ÉPÍTÉSŰ, egyszintes,
Otthon start 3% hitelre, Zöldhitelre, Csok+ra alkalmas ikerházat!!

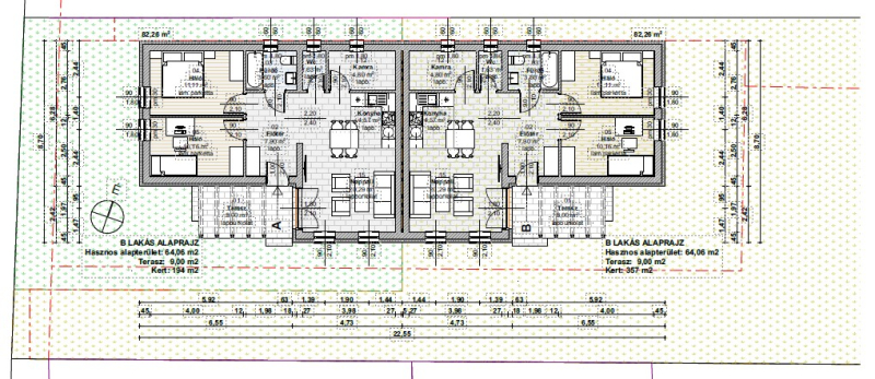
A LAKÁS Nettó 64,06 m2 Terasz: 9,00 m2 Kert: 194 m2 47,9M
-Előtér 7,9nm
-Amerikaikonyhás-Nappali 24,86nm
-szoba 11,11nm
-szoba 10,16nm
-fürdő 3.6nm
-wc 1.63nm
-kamra 4,8nm

B LAKÁS Nettó 64,06 m2 Terasz: 9,00 m2 Kert: 357 m2 48,9M
-Előtér 7,9nm
-Amerikaikonyhás-Nappali 24,86nm
-szoba 11,11nm
-szoba 10,16nm
-fürdő 3.6nm
-wc 1.63nm
-kamra 4,8nm

Az épület fűtéséről, NAPELEMMEL KOMBINÁLHATÓ, HŐSZIVATTYÚ gondoskodik, padlófűtéssel.
Pár műszaki adat: -Leier 30-as téglából épül, tégla válaszfalakkal, -külső szigetelése Dryvit rendszerű -fa tetőszerkezet, -fa födém, -gipszkarton mennyezet, -Bramac cserépfedés -műanyag hőszigetelt nyílászárók -külső Dryvit rendszerű szigetelés -A belső burkolatok kiválaszthatóak.
5 perc séta a távolsági buszmegálló.
Bölcsöde, óvoda, iskola, Kultúr és Egészség-Ház, bevásárlási lehetőségek!!

10 % foglalóval leköthető
Várható Átadás 2026 II.negyedév.
Cégünk INGYENES, iroda és bank-független Hitel ügyintézéssel is rendelkezésére áll, nem csak nálunk vásárolt ingatlanokra!!
Kérdés és-vagy időpont egyeztetés miatt hívjon bátran akár hétvégén is.
Amennyiben nem tudom felvenni visszahívom.


További adatok
Telekterület: 357 m2
Kert mérete: 357 m2
Erkély mérete: 9 m2
Felszereltség: -
Parkolás: -
Kilátás: -
Egyéb extrák:  
Hirdető adatai
Hirdető neve: Dream Credit Kft.
Kapcsolattartó: Zsuzsanna Hegedűs
Hirdető telefonszáma: +36707798880
Honlap: -
 
Üzenetet küldhet a hirdetőnek, árajánlatot tehet az ingatlanra:
Az Ön neve:
Az Ön e-mail címe:
Üzenet: