Ingatlan Televízió
Ingatlan Televízió
további hirdetések
adatlap bezárása

Királyszentistván 
 

Hivatkozási szám: 5854709
Ingatlan adatai
Irányár: 99 000 000 Ft
Típus: ház
Kategória: eladó
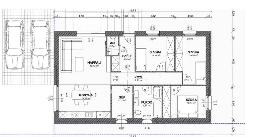
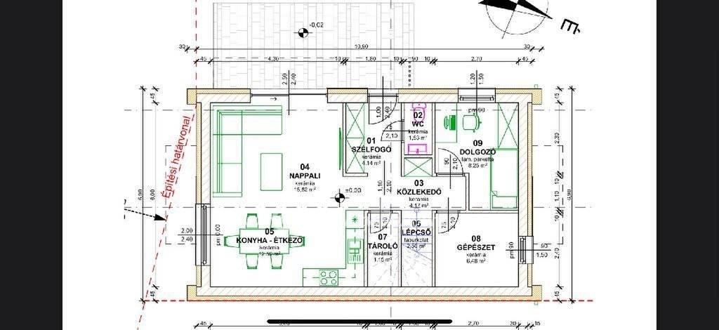
Alapterület: 91 m2
Fűtés: -
Állapota: új
Szobák száma: 4
Építés éve: 2026
Szintek száma: 2
Részletes leírás
*** ÚJÉPÍTÉSŰ CSALÁDI HÁZAK VESZPRÉMTŐL KARNYÚJTÁSNYIRA! ***

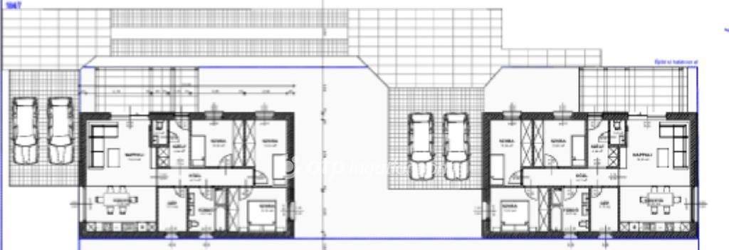
A Balatontól mindössze 7 km-re, Királyszentistvánon prémium minőségű, újépítésű családi házak leköthetőek csodás tájpanorámával!

Az ingatlanok kivitelezésének indulása 2026. február 20.

2026-ban ajándékba jár az ingatlanokhoz 5kW-os sziget üzemű napelemrendszer és annak telepítése, valamint 1 db 3,5 kW-os klíma.

Most még teljes mértékben Ön döntheti el milyen otthont szeretne:

- 80 m2 vagy 125 m2
- földszintes vagy emeletes
- 3 vagy 4 szobás
- kék, barna vagy zöld burkolatok

Nem kell kompromisszumot kötnie, hiszen a kivitelező partner segít az elképzelései megvalósításában. Mindezt prémium megoldásokkal, energiatakarékos kivitelezéssel, csodás környezetben!

Műszaki jellemzők:
- Ytong falazat
- 20 cm-es homlokzati hőszigetelés
- 30 cm-es kőzetgyapot tetőszigetelés
- 15 cm-es aljzatszigetelés
- Hőszivattyús fűtésrendszer
- Háromrétegű műanyag nyílászárók
- Egyedileg választható hideg- és melegburkolatok a megadott keretek közt
- Egyedileg választható beltéri ajtók
- Napelemrendszer
- Hűtő-fűtő klíma

Amennyiben hirdetésem felkeltette az érdeklődését, keressen bizalommal, az ingatlan időpont-egyeztetést követően rugalmasan megtekinthető! Nálunk minden megtekintés DÍJMENTES!

Az OTP Ingatlanpont teljes körű ügyintézéssel áll az eladók és a vevők rendelkezésére. A kínálatunkból választott ingatlan finanszírozásához kedvezményes hitelkonstrukciót kínálunk. Az adásvételi szerződés megkötéséhez igény szerint megbízható ügyvédi közreműködést biztosítunk, és segítséget nyújtunk az adásvételhez kapcsolódó ügyek intézéséhez is!
További adatok
Telekterület: 400 m2
Kert mérete: -
Erkély mérete: -
Felszereltség: -
Parkolás: lakáshoz van kültéri parkoló
Kilátás: -
Egyéb extrák:  
Hirdető adatai
Hirdető neve: otpip.hu - Veszprém Kossuth utca 8 - OTP Ingatlanpont Iroda
Kapcsolattartó: Maczucza Márton
Hirdető telefonszáma: +36-30-345-0219
Honlap: -
 
Üzenetet küldhet a hirdetőnek, árajánlatot tehet az ingatlanra:
Az Ön neve:
Az Ön e-mail címe:
Üzenet: